Large modern two-bedroom flat with parking and balcony in central Norwich.
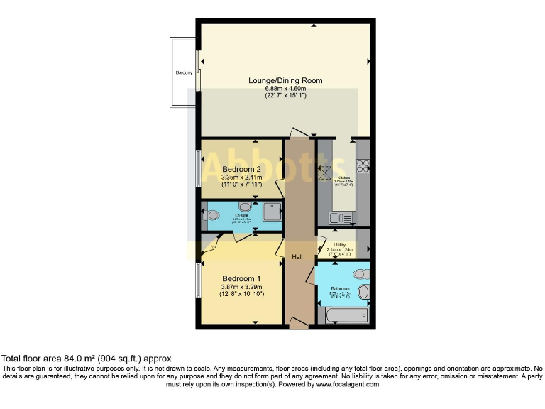
Spacious 904 sq ft two-bedroom flat with private balcony
Set in the heart of Norwich city centre, this spacious two-bedroom apartment offers low-maintenance, modern living with a private balcony and allocated off-street parking. The open-plan living area and large windows create a bright, airy feel, while contemporary finishes and double glazing (post-2002) keep running costs reasonable. Communal landscaped gardens and lift access add practical convenience in a five-storey development built since 2007.
This property suits investors or city professionals seeking central location and rental appeal. The excellent mobile signal and proximity to public transport, shops, cafés and multiple schools — including an Outstanding-rated secondary nearby — support strong tenant demand. Flood risk is nil and the building benefits from mains gas heating with boiler and radiators installed.
Important considerations: the local area records very high crime levels and is classified as very deprived, which may affect long-term resale or let premiums. Tenure is unspecified and should be confirmed before exchange. The flat is chain-free and generally well presented, but buyers wanting a very quiet or low-crime neighbourhood may prefer to view other areas.
2 bedroom flat for sale in Geoffrey Watling Way, NORWICH, Norfolk, NR1 — £220,000 • 2 bed • 1 bath • 663 ft²
2 bedroom flat for sale in Flat 45, Skipper House, Norwich, NR1 — £285,000 • 2 bed • 1 bath • 743 ft²
2 bedroom apartment for sale in Brooke Place, Norwich, NR1 — £165,000 • 2 bed • 1 bath • 613 ft²
1 bedroom flat for sale in Coburg Street, Norwich, NR1 — £140,000 • 1 bed • 1 bath • 463 ft²
2 bedroom apartment for sale in Morgan House, Rouen Road, Norwich, NR1 — £160,000 • 2 bed • 1 bath • 664 ft²
2 bedroom flat for sale in Morgan House, Norwich, NR1 — £160,000 • 2 bed • 1 bath • 586 ft²






































































