Chain-free vacant house with strong transport links and nearby good schools.
Vacant two-bedroom mid-terrace, chain-free
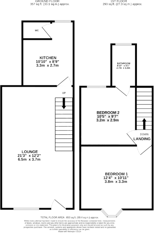
Approximately 650 sq ft, traditional layout with two receptions
Working but dated kitchen; move-in possible while renovating
Requires full modernisation: heating, insulation, likely cosmetic work
Solid brick walls assumed uninsulated; consider energy improvements
Very small rear/plot size; limited outdoor space
Excellent mobile signal and fast broadband; good transport links
Located in a very deprived area — may affect resale timing
This vacant two-bedroom mid-terrace in L15 is offered chain-free and ready for someone to modernise and add value. At about 650 sq ft it has a traditional layout with two reception rooms, a working but dated kitchen and a single bathroom — practical for first-time buyers or investors seeking a straightforward refurbishment project.
The house retains period features externally (Victorian red brick and bay window) but internally needs updating: heating relies on room heaters and mains gas, and walls are solid brick with assumed no insulation. The small plot and very small front area limit outdoor space, and the property sits within a very deprived area — factors that may affect resale timing and tenant demand.
Transport links and local amenities are strong, with frequent buses nearby and fast broadband and excellent mobile signal. Nearby schools include several rated Good and one Outstanding secondary, which will appeal to families. Chain-free sale and vacant possession mean a quick move or refurbishment programme is possible.
Budget-conscious buyers should allow for modernisation costs (heating, insulation, cosmetics and possible electrical updates). For investors, the property’s size and location suit rental demand in this neighbourhood; for owner-occupiers, it offers an affordable entry point into a popular area with clear potential once upgraded.
3 bedroom terraced house for sale in Ashbank Road, Liverpool, Merseyside, L11 — £90,000 • 3 bed • 1 bath • 407 ft²
2 bedroom terraced house for sale in Bishopgate Street, Liverpool, Merseyside, L15 — £120,000 • 2 bed • 1 bath • 692 ft²
2 bedroom terraced house for sale in Grange Street, Liverpool, Merseyside, L6 — £60,000 • 2 bed • 1 bath
3 bedroom terraced house for sale in Whinfield Road, Walton, Liverpool, Merseyside, L9 — £135,000 • 3 bed • 1 bath • 811 ft²
2 bedroom terraced house for sale in Olney Street, Anfield, Liverpool, L4 — £110,000 • 2 bed • 1 bath • 397 ft²
2 bedroom terraced house for sale in Rymer Grove, Liverpool L4 5ST, L4 — £104,950 • 2 bed • 1 bath






































