Ideal for growing households seeking green space and fast commutes.
Bright reception room with rustic exposed beams
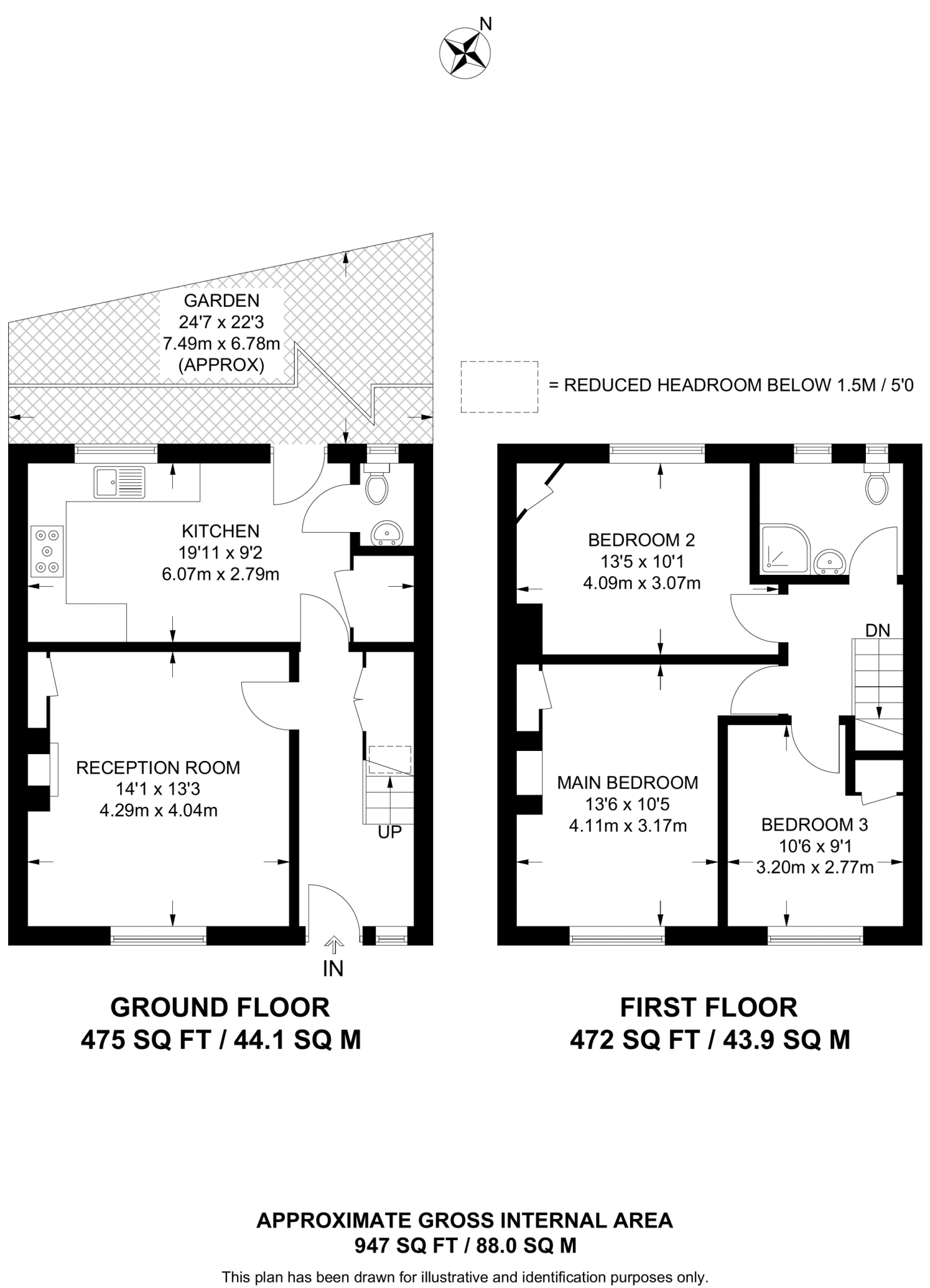
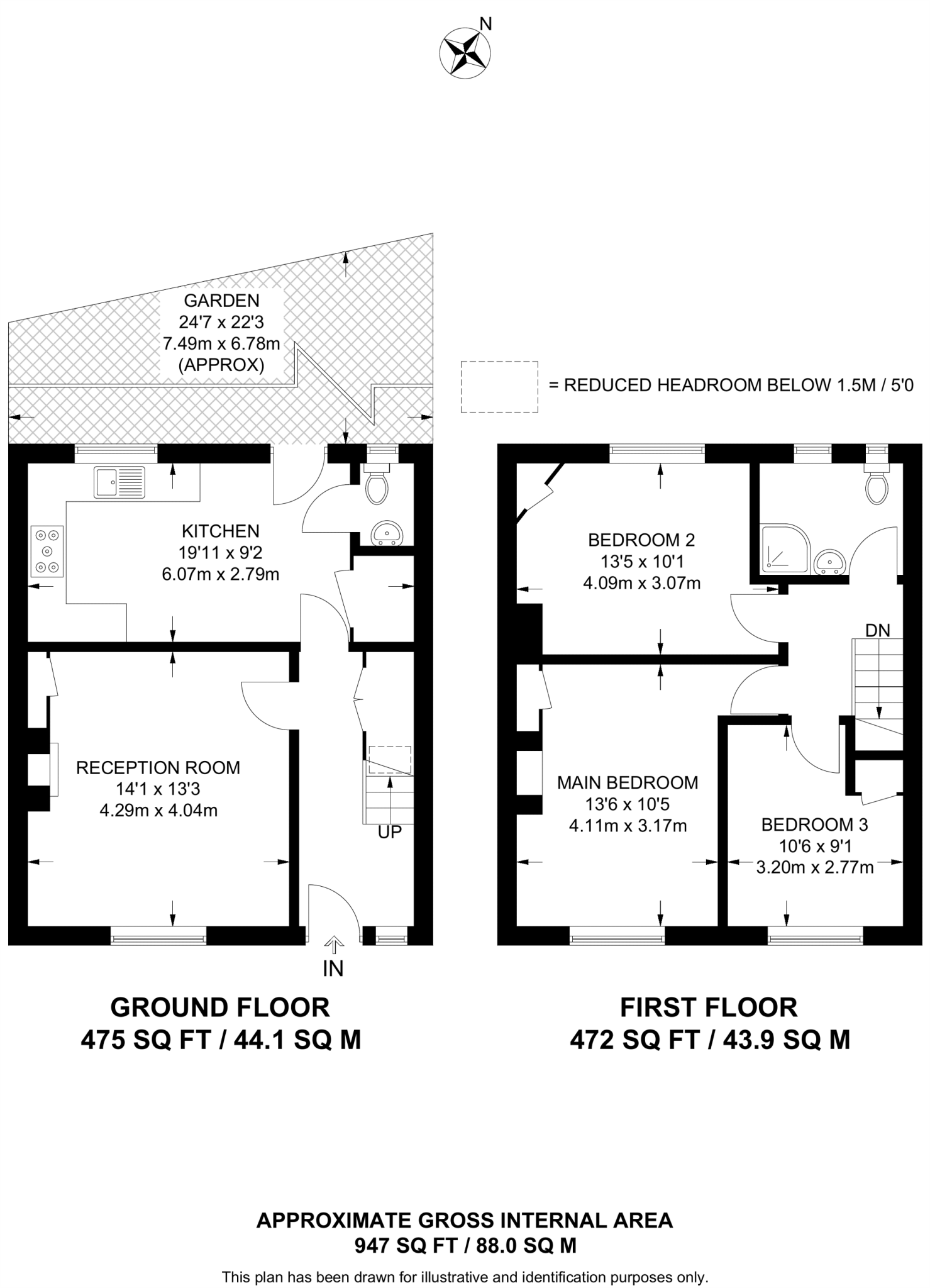
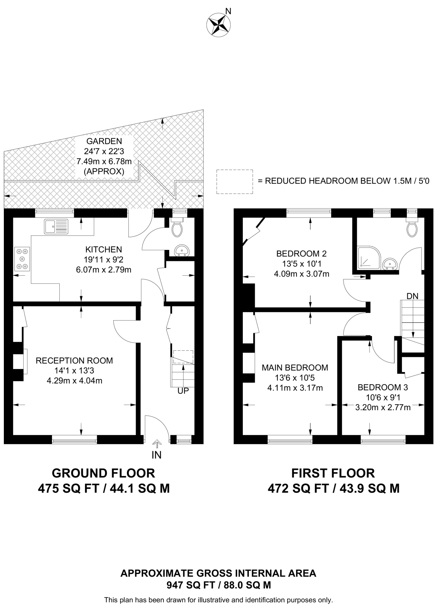
This freehold three-bedroom terraced house offers comfortable, practical living across two floors with 947 sqft of space. A bright reception room leads to a spacious kitchen with dining space and direct access to a decent-sized private garden — ideal for children and outdoor meals. The property benefits from mains gas central heating, double glazing (installation date unknown) and off-street parking.
Located a short walk from Kidbrooke Station and adjacent to large open green space, the house suits commuters and households wanting outdoor access. Local schools include several Good and one Outstanding-rated secondary, supporting family life in the area.
Notable considerations: the property has a single shower room and separate WC only, and the solid brick walls are assumed to have no insulation, so improving thermal performance may be required. The area scores as deprived and crime is average; buyers should factor in potential running-cost and retrofit work. Overall, this is a straightforward period home with good transport links and garden potential for a growing household.
3 bedroom semi-detached house for sale in Westhorne Avenue, Kidbrooke, London, SE9 — £500,000 • 3 bed • 1 bath • 1129 ft²
3 bedroom terraced house for sale in Astell Road, Kidbrooke, SE3 — £850,000 • 3 bed • 3 bath • 1372 ft²
3 bedroom house for sale in Meerbrook Road, Kidbrooke, London, SE3 — £585,000 • 3 bed • 2 bath • 1113 ft²
3 bedroom terraced house for sale in Kidbrooke Park Close, Blackheath, London, SE3 — £450,000 • 3 bed • 1 bath • 1004 ft²
3 bedroom terraced house for sale in Purneys Road, London, SE9 — £525,000 • 3 bed • 1 bath • 905 ft²
4 bedroom house for sale in Woolacombe Road, Kidbrooke, London, SE3 — £850,000 • 4 bed • 2 bath • 1420 ft²






















































































































































