Spacious mid-terrace with large garden and easy access to Kidbrooke transport links.
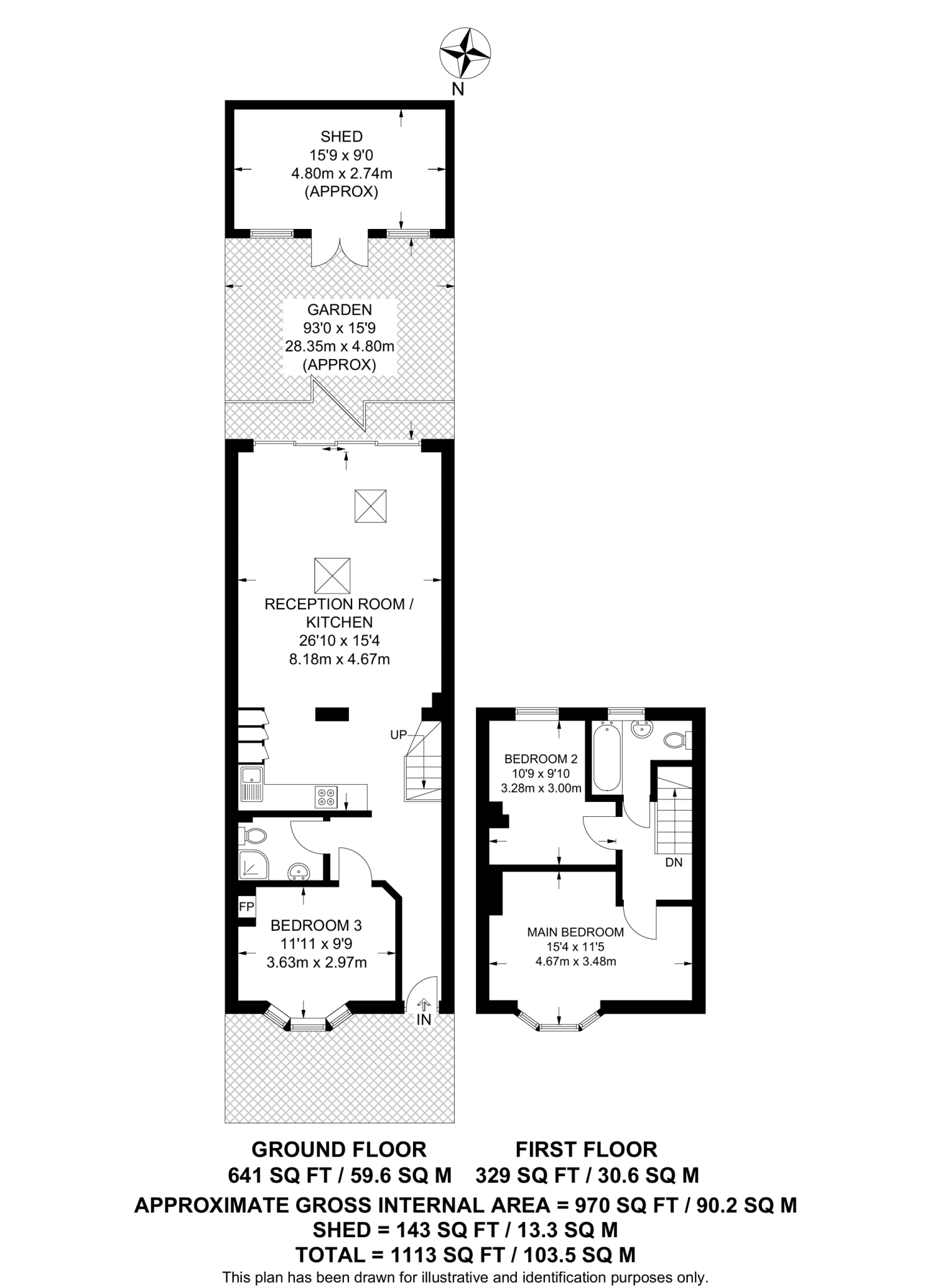
3 bedrooms and 2 bathrooms, approximately 1,113 sq ft
Set on peaceful Meerbrook Road, this three-bedroom mid-terrace offers comfortable family living with a large private garden and 1,113 sq ft of space. The bright, open-plan reception benefits from skylights and patio doors that bring the garden into daily life, while a sleek kitchen provides a modern focal point for family meals.
Practical details suit everyday life: two bathrooms, double glazing (unknown install date), mains gas boiler and radiators, freehold tenure and fast broadband. The plot is a decent size for the area and the house sits close to Kidbrooke Station and the A2, making commutes into central London straightforward. Several well-rated primary and secondary schools are within easy reach, including an outstanding local academy.
Be realistic about likely improvement costs: the house was built in the 1950s–60s and the cavity walls are assumed to lack insulation, so upgrading thermal performance could be needed. Double glazing age is unspecified and general modernisation to personal taste may be required. The neighbourhood shows signs of deprivation and recorded crime is above average; consider viewing at different times and checking local statistics if safety and community investment are priorities.
Overall, this freehold three-bedroom terrace will suit families seeking quick transport links, outdoor space and good local schools, and who are open to modest retrofit or cosmetic updating to enhance comfort and energy efficiency.
3 bedroom house for sale in Meerbrook Road, Kidbrooke, London, SE3 — £585,000 • 3 bed • 2 bath • 1113 ft²
3 bedroom terraced house for sale in Astell Road, Kidbrooke, SE3 — £850,000 • 3 bed • 3 bath • 1372 ft²
3 bedroom terraced house for sale in Kidbrooke Park Close, Blackheath, London, SE3 — £450,000 • 3 bed • 1 bath • 1004 ft²
3 bedroom terraced house for sale in Shawbrooke Road, Blackheath, London, SE9 — £550,000 • 3 bed • 1 bath • 947 ft²
3 bedroom terraced house for sale in Westhorne Avenue, Eltham, London, SE9 — £450,000 • 3 bed • 1 bath • 1073 ft²
4 bedroom house for sale in Woolacombe Road, Kidbrooke, London, SE3 — £850,000 • 4 bed • 2 bath • 1420 ft²






























































