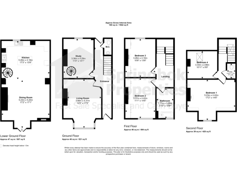
Large family home with character and a modern entertaining kitchen.
- Nearly 2,000 sq ft across four floors, four double bedrooms
- Large open-plan lower-ground living kitchen with quality appliances
- Front bay reception room with original fireplace and high ceilings
- Enclosed rear courtyard, artificial lawn and useful outbuilding
- Permit parking front; limited additional parking to rear (first-come)
- Built c.1900–1929; external walls assumed uninsulated (upgrade likely)
- Double glazing installed pre-2002; energy-efficiency improvements advised
- Local crime levels reported higher than average — buyer due diligence advised
This handsome Victorian mid-terrace on North Street delivers almost 2,000 sq ft of flexible family living across four floors, combining period character with a high-spec open-plan kitchen. The elegant entrance, bay-fronted reception and high ceilings retain original charm while the lower-ground living kitchen provides a contemporary entertaining hub fitted with quality appliances and direct garden access.
Accommodation includes four double bedrooms, a large family bathroom with a four-piece suite and an additional W.C., making the layout suitable for growing families or those needing a home office. The property benefits from a screened front garden behind iron railings, an enclosed rear courtyard with artificial grass and a practical outbuilding that houses the boiler and provides storage.
Practical considerations are stated plainly: the property is older (circa 1900–1929) with external stone walls assumed uninsulated and double glazing installed before 2002, so buyers should allow for potential energy-efficiency upgrades. Parking is by permit to the front with limited further spaces at the rear on a first-come basis. The surrounding area scores well for amenities, schools and transport, but reported local crime is higher than average, which prospective buyers should factor into their checks.
Well placed for top-rated local schools, riverside walks and commuter links to Leeds, York and Harrogate, this freehold town house suits families seeking a large, characterful home with scope to improve energy performance. Early viewing is recommended to assess condition and investment needs in person.
2 bedroom terraced house for sale in St. James Street, Wetherby, LS22 — £310,000 • 2 bed • 1 bath • 983 ft²
2 bedroom terraced house for sale in Wetherby, St James Street, LS22 — £325,000 • 2 bed • 1 bath • 1188 ft²
4 bedroom terraced house for sale in Micklethwaite Grove, Wetherby, LS22 — £385,000 • 4 bed • 2 bath • 1118 ft²
4 bedroom detached house for sale in Wetherby, York Road, LS22 6SL, LS22 — £650,000 • 4 bed • 3 bath • 2007 ft²
5 bedroom semi-detached house for sale in Spofforth Hill, Wetherby, LS22 — £895,000 • 5 bed • 2 bath • 4209 ft²
4 bedroom semi-detached house for sale in Coxwold View, Wetherby, LS22 — £500,000 • 4 bed • 2 bath • 1920 ft²










































































