Light-filled family home with private garden close to top schools.
Victorian maisonette with original period features and bay window
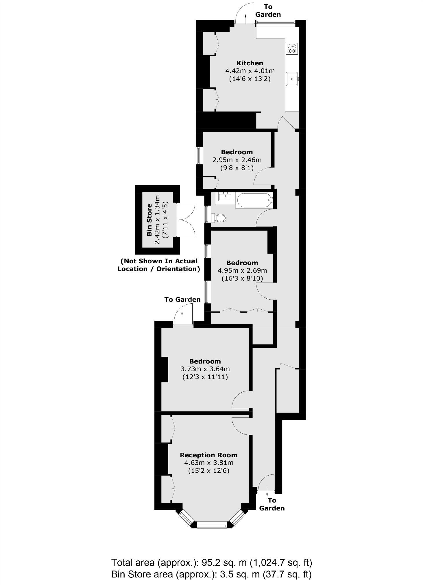
A well-presented three-bedroom Victorian maisonette on Harborough Road, offering period character and a private rear garden ideal for family life. The layout delivers generous front reception space, a modern kitchen opening to a small, low‑maintenance garden, and three bedrooms across two floors — a practical home for parents and children.
Location is a real strength: Sunnyhill Primary and several highly rated schools are within easy reach, and frequent rail and bus links connect to central London and the Victoria line. The house benefits from useful extras including a front bicycle store and good natural light to both front and rear rooms.
Buyers should note this is a leasehold property with 145 years remaining. Energy performance is rated D and the solid-brick original walls are likely uninsulated, so further insulation or energy upgrades could be needed to improve running costs. There is a single family bathroom, and the garden is compact rather than expansive.
Overall this is a comfortable, characterful urban family home that combines Victorian detail with tasteful modern fittings. It will suit buyers seeking a well-located, low-maintenance property with scope for further energy improvements and minor layout or decorative updates.
2 bedroom maisonette for sale in Harborough Road, Streatham, SW16 — £650,000 • 2 bed • 1 bath • 976 ft²
2 bedroom maisonette for sale in Harborough Road, Streatham, SW16 — £595,000 • 2 bed • 1 bath • 997 ft²
2 bedroom maisonette for sale in Harborough Road, Streatham, SW16 — £595,000 • 2 bed • 1 bath • 997 ft²
3 bedroom maisonette for sale in Harborough Road, London, SW16 — £650,000 • 3 bed • 1 bath • 1051 ft²
3 bedroom maisonette for sale in Harborough Road, Streatham, London, SW16 — £700,000 • 3 bed • 1 bath • 1113 ft²
3 bedroom maisonette for sale in Harborough Road, Streatham, London, SW16 — £650,000 • 3 bed • 1 bath • 1121 ft²


































