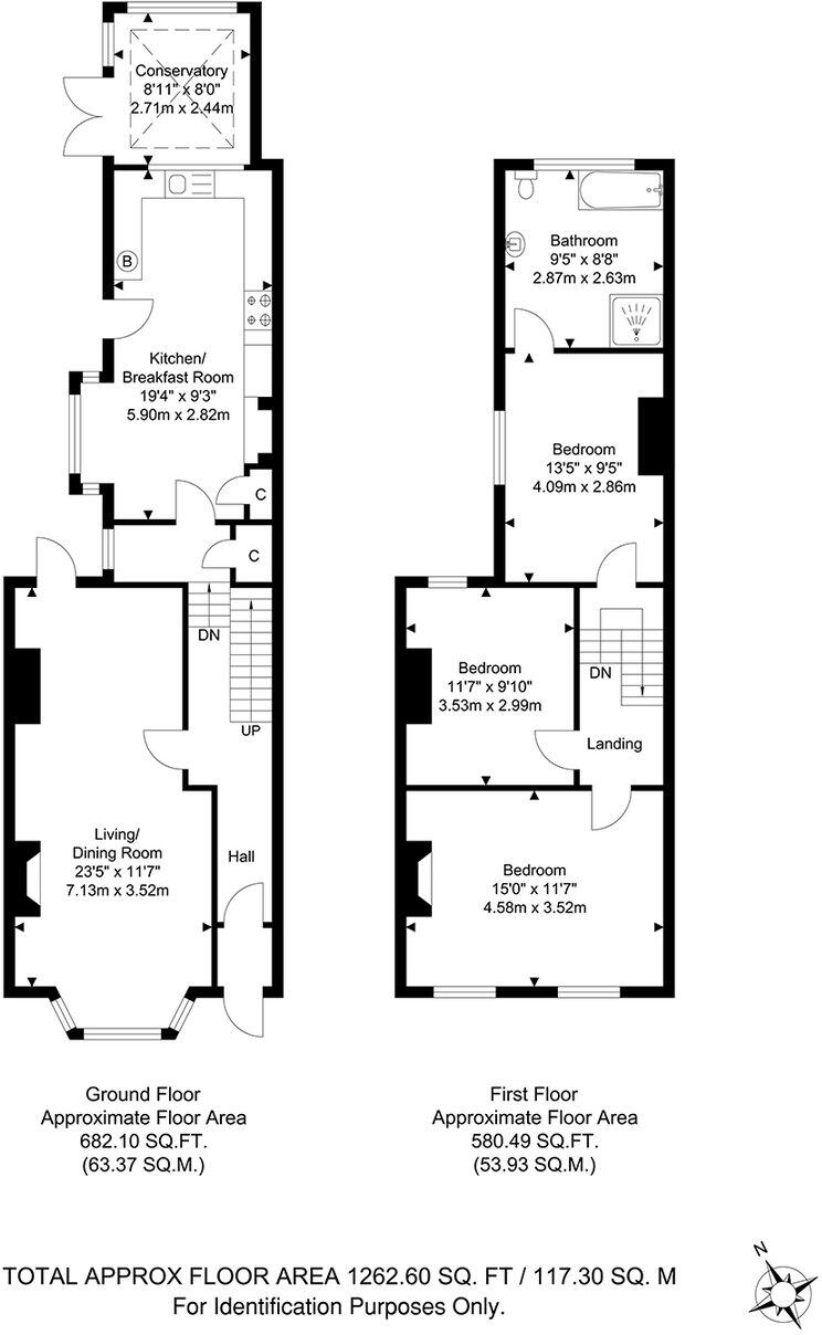
Large three-double-bedroom family home near Plumstead Station with garden and conservatory.
3 double bedrooms across two floors
A roomy Victorian terrace arranged over two storeys, this three-double-bedroom home offers generous living space for a growing family. The through-lounge and open-plan kitchen/breakfast room provide flexible day-to-day living, while a conservatory and a 30ft rear garden deliver extra light and outdoor space for children or pets. The property is freehold and extends to approximately 1,262 sq ft, a notable size for the area.
Practical features include double glazing, gas central heating and a separate utility area, making the layout family-friendly. Plumstead Station (Thameslink) is within easy reach for commuting, and several primary schools nearby include an Outstanding-rated option — useful for parents planning school runs. Broadband speeds are fast and mobile signal is excellent.
Buyers should note material aspects of the location: the immediate area is classed as very deprived with a high local crime rate, which will affect long-term desirability and insurance considerations. The plot is small and the property has a single family bathroom, which may require planning around morning routines for larger families. The house is offered with a complete chain.
This house will suit buyers who prioritise internal space, transport links and proximity to schools and who are comfortable buying into a dense urban neighbourhood. It also presents straightforward potential for cosmetic improvement or modest reconfiguration to improve circulation and add value over time.
3 bedroom terraced house for sale in Brewery Road, London, SE18 — £400,000 • 3 bed • 1 bath • 862 ft²
3 bedroom terraced house for sale in Benares Road, Plumstead, SE18 — £475,000 • 3 bed • 1 bath • 1062 ft²
3 bedroom terraced house for sale in Benares Road, Plumstead, SE18 — £475,000 • 3 bed • 1 bath • 1075 ft²
3 bedroom terraced house for sale in Riverdale Road, Plumstead, London SE18 1NZ, SE18 — £475,000 • 3 bed • 1 bath • 1078 ft²
3 bedroom house for sale in Balgowan Street, London, SE18 — £379,995 • 3 bed • 1 bath
3 bedroom terraced house for sale in Flaxton Road, Plumstead, London SE18 2EJ, SE18 — £450,000 • 3 bed • 2 bath • 1000 ft²


























































