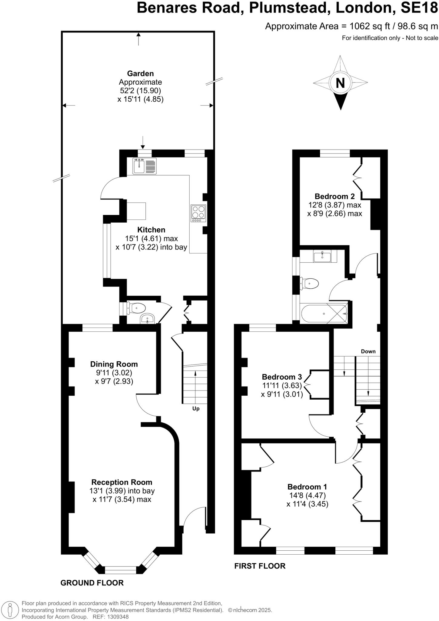
**Standout Features:**
- Charming Victorian terraced home with three double bedrooms
- Generous through lounge/dining room with double glazed bay window
- Spacious 15ft kitchen/breakfast room, well-equipped with modern appliances
- Modern bathroom suite with three-piece fittings
- Expansive 52ft rear garden, primarily laid to lawn
- Double glazing and central heating for year-round comfort
- Conveniently located near Plumstead High Street, schools, and transportation
**Overview:**
Discover this delightful Victorian terraced house, perfect for families or first-time buyers seeking a blend of classic charm and modern convenience. The well-presented interior features a spacious through lounge and dining area bathed in natural light from the bay window. The 15ft kitchen is a chef's dream, fully equipped with high-quality appliances, offering ample space for breakfast gatherings.
Upstairs, you’ll find three comfortable double bedrooms, providing private sanctuaries for all family members. Complementing the bedrooms is a stylish modern bathroom, designed for relaxation. Step outside to your expansive 52ft garden, ideal for entertaining or enjoying time outdoors.
Located in a vibrant area, this home is just a short walk from local shops, schools with outstanding ratings, and Plumstead mainline station for easy commuting. With an energy efficiency rating of D and council tax band C, the property provides a balanced blend of comfort and affordability.
Don't miss out on this opportunity; properties with such character and space rarely stay on the market for long! Schedule your viewing today and envision the possibilities this home holds for you and your family.
3 bedroom terraced house for sale in Benares Road, Plumstead, SE18 — £475,000 • 3 bed • 1 bath • 1075 ft²
3 bedroom terraced house for sale in Vambery Road, Plumstead, London, SE18 3HA, SE18 — £625,000 • 3 bed • 1 bath • 1635 ft²
3 bedroom house for sale in Balgowan Street, London, SE18 — £379,995 • 3 bed • 1 bath
4 bedroom terraced house for sale in Purrett Road, Plumstead, London, SE18 — £550,000 • 4 bed • 2 bath • 1486 ft²
3 bedroom terraced house for sale in Flaxton Road, Plumstead, London SE18 2EJ, SE18 — £450,000 • 3 bed • 2 bath • 1000 ft²
4 bedroom terraced house for sale in Wernbrook Street, Plumstead, London, SE18 — £525,000 • 4 bed • 1 bath • 1234 ft²


































































































