Affordable 2-bed starter home with south garden and garage near local amenities.
Two-bedroom mid-terrace with conventional two-storey layout
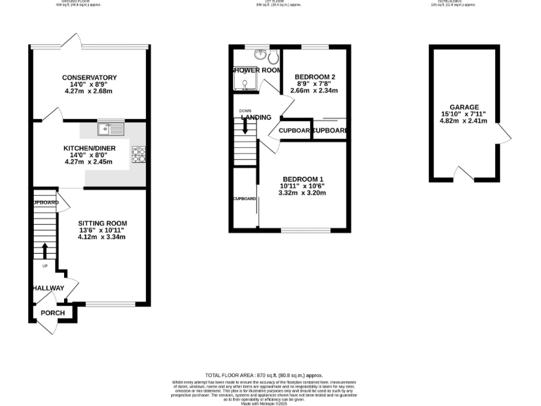
This well-presented two-bedroom mid-terrace offers a practical starter home with a south-facing rear garden and single garage. The layout is traditional and straightforward: entrance porch and hallway, sitting room, kitchen/diner, conservatory, two bedrooms with built-in cupboards and a shower room. Total floor area is around 870 sq ft, suited to a small family, couple or first-time buyer wanting an affordable, move-in-ready property.
Location is convenient for everyday needs with nearby shops, healthcare facilities, playgrounds and several primary and secondary schools rated Good. The property is freehold and positioned in a residential area of Taunton with easy access to local roads. A conservatory brings garden views and extra flexible space for dining or a small home workspace.
Be realistic about the neighbourhood: local deprivation indicators are above average and recorded crime is higher than typical, which may concern some buyers. Broadband speeds are average and the plot is small, so outdoor space is modest despite the south-facing aspect. Overall this is a practical, affordable home with straightforward potential for modest updating rather than a major renovation.
2 bedroom terraced house for sale in Monkton Heathfield, TA2 — £210,000 • 2 bed • 1 bath • 545 ft²
2 bedroom terraced house for sale in Portman Street, Taunton, TA2 — £220,000 • 2 bed • 1 bath • 624 ft²
2 bedroom terraced house for sale in 75 Severn Drive, Taunton, TA1 — £220,000 • 2 bed • 1 bath • 516 ft²
2 bedroom terraced house for sale in Ashbourne Crescent, Taunton, TA1 — £182,500 • 2 bed • 1 bath • 487 ft²
2 bedroom terraced house for sale in Queensway, Taunton, TA1 — £225,000 • 2 bed • 1 bath • 838 ft²
2 bedroom terraced house for sale in Savery Row, TA1 — £195,000 • 2 bed • 1 bath • 612 ft²


































































