AL4 0XP - 3 bedroom semidetached house for sale in Hatfield Road, St.…

View on Property Piper

3 bedroom semi-detached house for sale in Hatfield Road, St. Albans, Hertfordshire, AL4

Summary - Hatfield Road, St. Albans, Hertfordshire, AL4 AL4 0XP

3 bed 1 bath Semi-Detached

**Standout Features:**
- **Three Bedrooms** and **Two Reception Rooms**
- Spacious, **Separate Fitted Kitchen**
- **Generous Rear Garden** complete with patio and lawn
- **Off-Street Parking** for two vehicles
- **Chain-Free** sale with no forward chain
- Approximately **1.2 miles** to St Albans City station
- Close to local shops, schools, and bus routes

**Property Summary:**
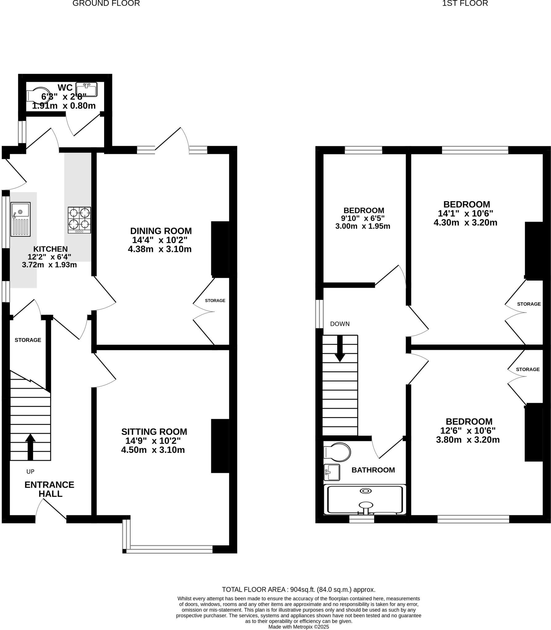
Discover this charming semi-detached family home nestled on Hatfield Road, where comfort meets potential. At approximately 904 sq. ft., the property features three good-sized bedrooms and two reception rooms, perfect for family gatherings and flexible living arrangements. A separate fitted kitchen guides you to a generous rear garden, ideal for outdoor relaxation or entertaining. With off-street parking for two vehicles, convenience is at your fingertips.

Although the home requires some renovation, this presents a wonderful opportunity for you to stamp your personal style and create your dream space. Its prime location boasts easy access to local amenities, schools, and St Albans City station, making it perfect for families or investors seeking rental potential in a desirable area. Recognized for its low crime rates and excellent broadband speeds, this property promises a secure and comfortable lifestyle. Don't miss out on this opportunity—schedule a viewing today and imagine the possibilities!

Property Details

Brochure Descriptions

Image Descriptions

Floorplan Description

Rooms

Textual Property Features

Detected Visual Features

EPC Details

Nearby Schools

Nearest Bars And Restaurants

,,,,}

Nearest General Shops

,,}

Nearest Grocery shops

,,}

Nearest Supermarkets

,,}

Nearest Religious buildings

,,}

Nearest Medical buildings

,,,}

Nearest Airports

,,}

Nearest Leisure Facilities

,,,,}

Nearest Tourist attractions

,,}

Nearest Train stations

,,,,}

Nearest Bus stations and stops

,,,,}

Nearest Hotels

,,}

Tags

Local Market Stats

Similar Properties

Meta

High Res Images

Compatible Images

Low res Images

Thumbnails

Raw Images

High Res Floorplan Images

Compatible Floorplan Images

Low res Floorplan Images

FloorplanImages Thumbnail

Raw Floorplan Images