Chain-free three-bedroom home with parking and garden, minutes from London Colney centre..
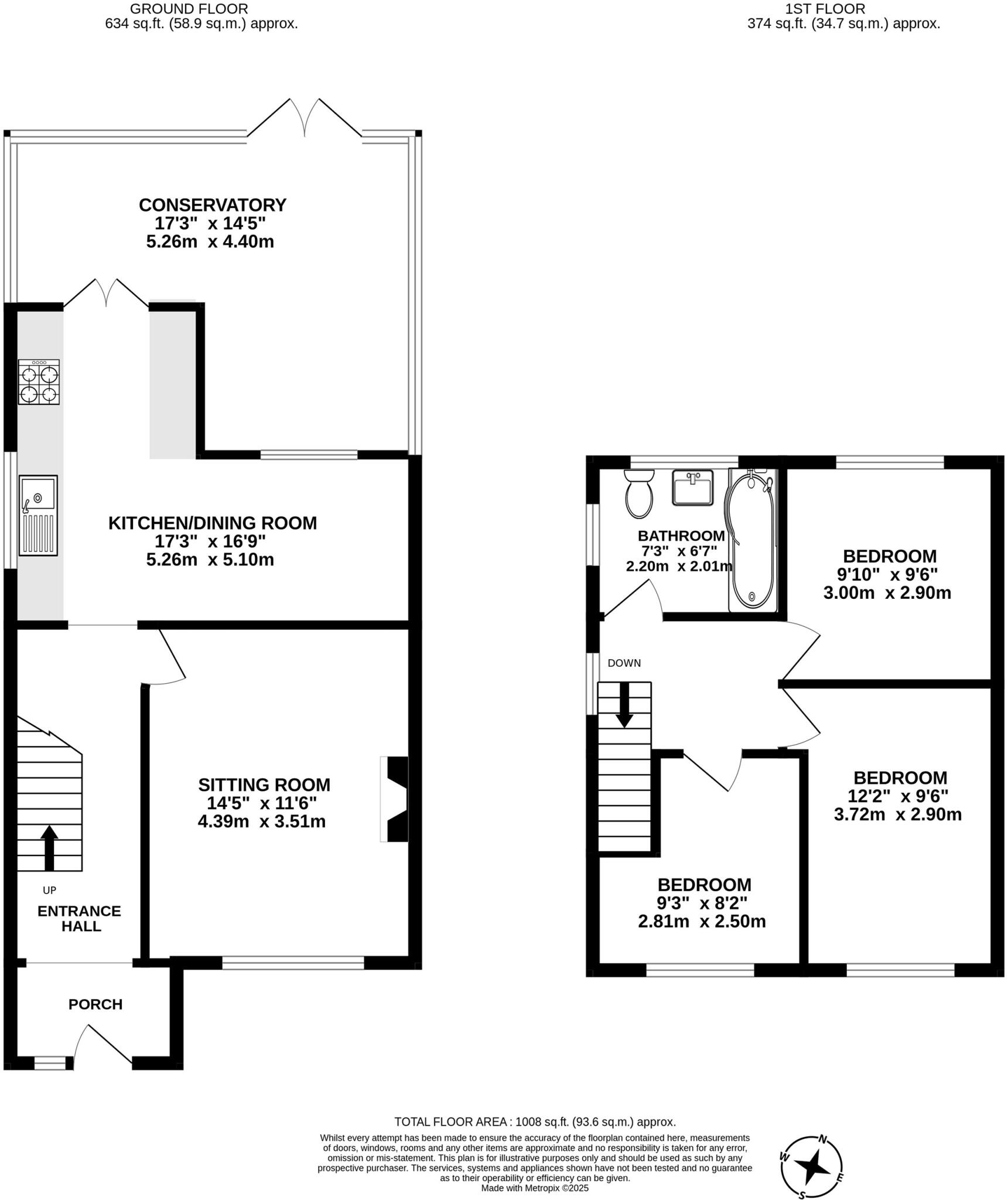
- Three bedrooms across two storeys, circa 1,008 sq ft
- Freehold and chain-free for a quicker move
- Off-street parking, side access and rear garden
- Needs modernising: likely kitchen and bathroom upgrades
- Solid brick, assumed no cavity insulation — improvement needed
- Single bathroom only; may suit families needing an extra loo
- 0.2 miles to London Colney centre, 3.2 miles to St Albans station
- Fast broadband and excellent mobile signal
Set on a decent plot just 0.2 miles from London Colney centre, this three-bedroom semi offers straightforward family living with strong future potential. The house is freehold and chain-free, with off-street parking, side access and a rear garden — practical features for everyday use and for extending (subject to consents).
Internally the layout provides comfortable rooms across two storeys with an average-sized footprint of about 1,008 sq ft. Double glazing and mains gas central heating are in place, but parts of the property need modernising; cosmetic and kitchen/bathroom upgrades are likely. There is a single bathroom and typical post‑war build characteristics to consider.
This will suit buyers seeking a family home close to local amenities and schools, or investors looking for a refurbishment opportunity near St Albans (3.2 miles to the city station). Note the property appears to have solid brick walls with no listed insulation, so buyers should allow for possible improvement works. No flood risk is recorded and broadband and mobile signals are good.
3 bedroom semi-detached house for sale in Chester Gibbons Green, London Colney, St. Albans, Hertfordshire, AL2 — £475,000 • 3 bed • 1 bath • 814 ft²
3 bedroom semi-detached house for sale in Abbots Avenue West, St. Albans, Hertfordshire, AL1 — £475,000 • 3 bed • 1 bath • 1055 ft²
3 bedroom semi-detached house for sale in Carnegie Road, St. Albans, Hertfordshire, AL3 — £700,000 • 3 bed • 1 bath • 1389 ft²
3 bedroom semi-detached house for sale in Cell Barnes Lane, St. Albans, Hertfordshire, AL1 — £500,000 • 3 bed • 2 bath • 1152 ft²
3 bedroom semi-detached house for sale in Sleapshyde Lane, Smallford, St. Albans, Hertfordshire, AL4 — £650,000 • 3 bed • 1 bath • 1344 ft²
3 bedroom semi-detached house for sale in Hatfield Road, St. Albans, Hertfordshire, AL4 — £500,000 • 3 bed • 1 bath • 904 ft²














































































