Spacious modern family home with generous garden and parking.
- 1,269 sq ft of flexible three-storey living space
- Open-plan kitchen/diner with French doors to south-facing garden
- Main bedroom with private en suite
- Two further double bedrooms plus top-floor shower room
- New-build with EV charging point and low expected maintenance
- Two off-street parking spaces side-by-side
- £21,000 deposit contribution to assist purchase
- Tenure and council tax band currently unspecified
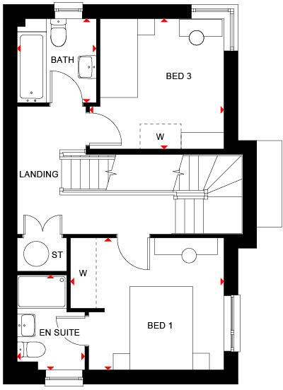
Set over three floors, this contemporary four-bedroom detached home offers 1,269 sq ft of adaptable living — well suited to growing families who need separate work and living zones. The open-plan kitchen/diner with French doors flows onto a turfed, south-facing garden, while a generous lounge provides a distinct relaxing and entertaining area.
The main bedroom includes a private en suite, with two further double bedrooms and a shower room on the top floor and a modern family bathroom on the first floor. Practical extras include two side-by-side parking spaces, an EV charging point and a substantial plot providing outdoor space and privacy. A £21,000 deposit contribution is offered to assist the move.
This is a new-build property so maintenance is likely to be lower than an older house, and finishes are contemporary throughout. Important practical notes: tenure and council tax band are not specified, and the three-storey layout means multiple stair flights — not ideal for those requiring single-floor living. Flood risk is low and local schools are rated Good, supporting family life in the area.
4 bedroom link detached house for sale in Darwin Green, Cambridge, CB3 — £722,995 • 4 bed • 2 bath • 1345 ft²
4 bedroom detached house for sale in Kinloch Road, Cambridge, Cambridge, CB1 — £950,000 • 4 bed • 1 bath • 1714 ft²
4 bedroom semi-detached house for sale in Darwin Green,
Shrewsbury Road,
CB3 0GX, CB3 — £722,995 • 4 bed • 1 bath • 1345 ft²
4 bedroom detached house for sale in Kinloch Road, Cambridge , Cambridge , CB1 — £879,950 • 4 bed • 2 bath • 1001 ft²
4 bedroom semi-detached house for sale in Kinloch Road, Cambridge , Cambridge , CB1 — £825,000 • 4 bed • 1 bath • 1564 ft²
4 bedroom detached house for sale in Darwin Green,
Shrewsbury Road,
CB3 0GX, CB3 — £724,995 • 4 bed • 1 bath • 1012 ft²










































