Energy-efficient new build with upgraded kitchen and EV charging.
£36,150 deposit contribution or 105% part-exchange available
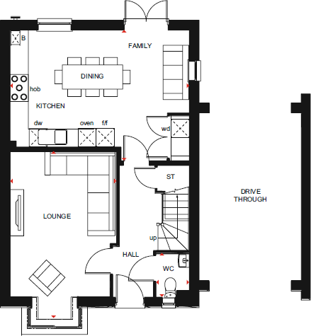
This newly built, freehold link-detached house in Darwin Green offers 1,345 sq ft of family-focused living with modern energy-saving features. The heart of the home is a generous open-plan kitchen/dining room with French doors to the rear garden, complemented by a separate front lounge and practical off-street parking. An upgraded kitchen (approx. £5,000 value) is included, and solar panels plus an EV charger help reduce running costs.
Upstairs provides four good-sized bedrooms, including a main bedroom with en-suite, and a family bathroom — a layout that suits families, home-workers or those needing spare rooms. The plot is small and the garden is low-maintenance, which will suit buyers prioritising convenience over extensive outdoor space. The property is offered with a £36,150 deposit contribution or a 105% part-exchange option to simplify moving costs.
Practical points to note: this is a new build so some photos are representative/CGI of the same house type rather than the exact plot. Council tax band is not provided. The location benefits from very low local crime, fast broadband and excellent mobile signal, and good nearby schooling options including an Outstanding-rated primary and several independent schools.
4 bedroom semi-detached house for sale in Darwin Green,
Shrewsbury Road,
CB3 0GX, CB3 — £722,995 • 4 bed • 1 bath • 1345 ft²
4 bedroom detached house for sale in Darwin Green,
Shrewsbury Road,
CB3 0GX, CB3 — £664,995 • 4 bed • 1 bath • 3498 ft²
3 bedroom detached house for sale in Darwin Green,
Shrewsbury Road,
CB3 0GX, CB3 — £649,995 • 3 bed • 1 bath • 1265 ft²
4 bedroom detached house for sale in Darwin Green,
Shrewsbury Road,
CB3 0GX, CB3 — £629,995 • 4 bed • 1 bath • 979 ft²
4 bedroom detached house for sale in Darwin Green,
Shrewsbury Road,
CB3 0GX, CB3 — £724,995 • 4 bed • 1 bath • 1012 ft²
4 bedroom semi-detached house for sale in Darwin Green,
Shrewsbury Road,
CB3 0GX, CB3 — £639,995 • 4 bed • 1 bath • 1158 ft²


















































