**Standout Features:**
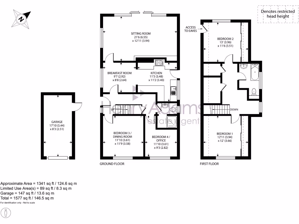
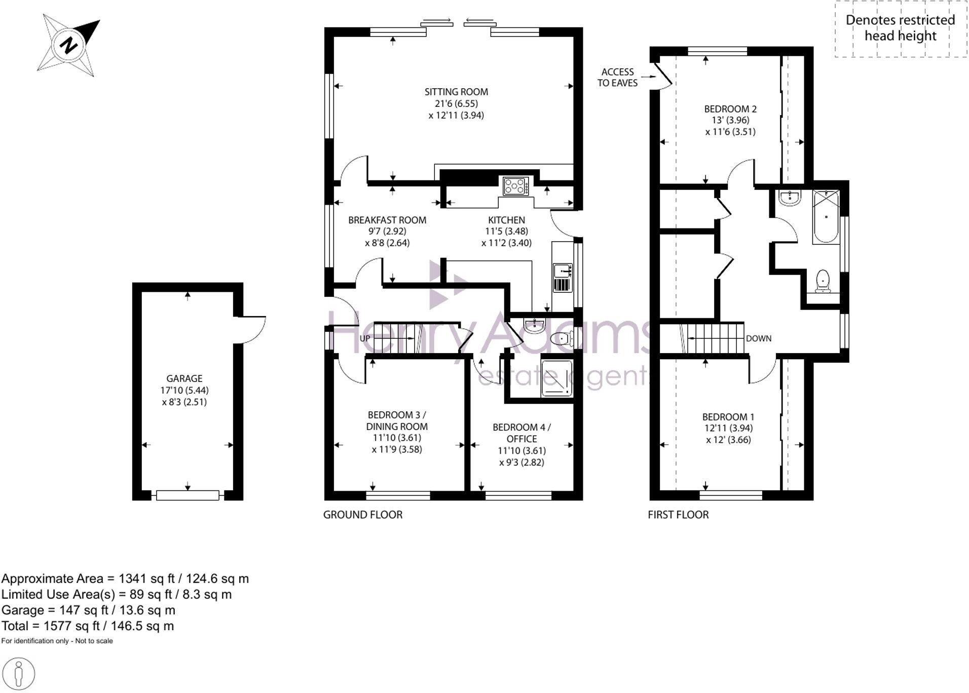
- Detached chalet-style house with a generous 1,577 sq ft.
- Four spacious bedrooms and two bathrooms.
- Modern kitchen-breakfast room and large sitting room with sliding patio doors.
- Private road location, just a short walk to the beach.
- Westerly rear garden and views over playing fields.
- Garage and driveway for ample parking.
- Low crime rate and very affluent community.
**Summary:**
Welcome to this charming detached chalet-style house, situated in a desirable private road, perfect for both families and those seeking an idyllic coastal lifestyle. This well-presented property boasts 1,577 sq ft of flexible living space, featuring four bedrooms and two bathrooms, ideal for comfortable family living or working from home. The expansive sitting room offers views of the westerly rear garden spacious enough for outdoor gatherings, while the modern kitchen-breakfast room is perfect for family meals. With easy access to the beach, local amenities, and highly regarded schools, this home strikes the perfect balance of relaxation and convenience.
While the property is well-maintained, it may present opportunities for personal touches and minor renovations. Buyers should note the private estate charge of approximately £135 p.a., but with low crime levels and a friendly community, this home offers peace and security for families. Don’t miss out on the chance to create lasting memories in this comfortable retreat; properties like this, in such a sought-after area, are not on the market for long!
4 bedroom detached house for sale in South Drive, Felpham, PO22 — £650,000 • 4 bed • 3 bath • 2331 ft²
3 bedroom detached house for sale in Southdean Drive, Middleton-On-Sea, PO22 — £575,000 • 3 bed • 2 bath • 1385 ft²
3 bedroom detached bungalow for sale in Elmer Road, Elmer, PO22 — £405,000 • 3 bed • 2 bath • 1464 ft²
4 bedroom chalet for sale in Elmer Road, Elmer, PO22 — £325,000 • 4 bed • 2 bath • 1592 ft²
2 bedroom detached house for sale in Andrew Avenue, Felpham, PO22 — £340,000 • 2 bed • 1 bath • 848 ft²
4 bedroom detached house for sale in Hornbeam Close, Aldwick, Bognor Regis, West Sussex, PO21 — £895,000 • 4 bed • 4 bath • 2116 ft²






















































































