Massive site with showroom frontage and strong redevelopment potential for operators or investors.
Asking price £3,000,000; low capital value (~£70/sq ft)
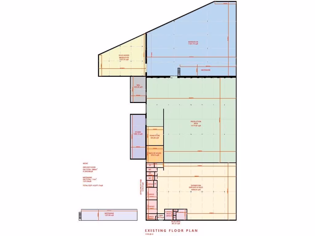
An extensive light industrial property on Pytchley Lodge Road, offered at £3,000,000, presents a rare scale and clear repositioning potential. The site is described as circa 43,083 sq ft including around 10,174 sq ft of showroom and offices to the front with the remainder as manufacturing and storage; the asking price works out to a low capital value of roughly £70 per sq ft. Availability is from 1 January 2026.
Practical positives include very large overall and plot size, showroom/office frontage, substantial warehouse/manufacturing area with a small mezzanine, concrete floors and open spans suitable for storage or light production. Mobile signal is excellent and flood risk is low, supporting continued operational use.
Material negatives and practical cautions: the local area is very deprived with a high recorded crime rate, and broadband speeds are very slow. Tenure is not stated; this should be confirmed before exchange. The marketing details include mixed descriptions of layout and ceiling heights (showroom noted as low ceiling; warehouse at standard height), so buyers should verify usable clearances and internal configuration on inspection. The property is marketed as available from 2026, so factor potential vacancy or holding costs.
This site will suit investors or operators seeking large-scale industrial accommodation at a low capital rate who are prepared to manage location challenges and confirm legal/tenure details. It also offers scope for refurbishment or reconfiguration to specialist uses, subject to planning and detailed surveys.
Warehouse for sale in Unit 3, Henson Way, Telford Way Industrial Estate, Kettering, Northamptonshire, NN16 8PX, NN16 — £2,975,000 • 1 bed • 1 bath • 27224 ft²
Land for sale in 1-2 Godwin Road, Earlstrees Industrial Estate, Corby, Northamptonshire, NN17 4DS, NN17 — £3,750,000 • 1 bed • 1 bath
Industrial park for sale in Studland Road, Kingsthorpe, Northampton NN2 6PZ, NN2 — £2,000,000 • 1 bed • 1 bath
Light industrial facility for sale in Durban Road, Kettering, Northamptonshire, NN16 — £195,000 • 1 bed • 1 bath • 1806 ft²
Warehouse for sale in Heathfield Way, Kings Heath Industrial Estate, Northampton, NN5 7QY, NN5 — £2,500,000 • 1 bed • 1 bath
Light industrial facility for sale in Trafalgar Road, Kettering, NN16 — £1,600,000 • 1 bed • 1 bath • 27577 ft²










































































