**Property Highlights:**
- Extended four-bedroom semi-detached home
- Three substantial reception rooms, including a large family room
- Spacious L-shaped modern kitchen with integrated appliances
- Family bathroom and convenient downstairs shower room
- Landscaped, enclosed rear garden ideal for relaxation and entertaining
- Environmentally friendly: solar panels, Tesla battery, and EV charger
- Garage and off-street parking for two vehicles
- Located in a low-crime, affluent suburban area
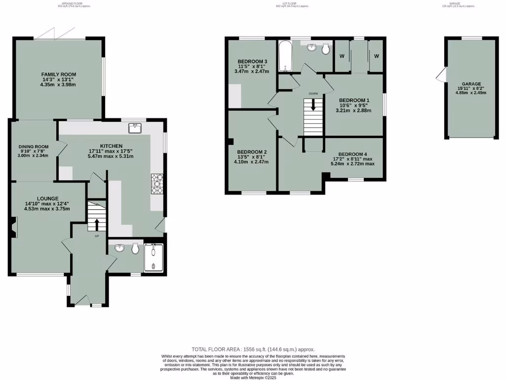
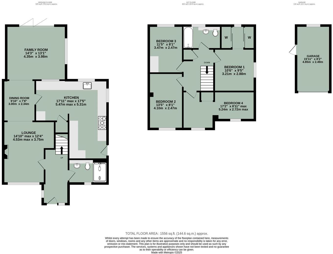
This charming extended four-bedroom semi-detached home in Benson presents an excellent opportunity for families seeking space and comfort. With an inviting L-shaped kitchen equipped with modern appliances, three generous reception rooms, and a well-manicured garden, this residence is designed for both convenience and leisure. Enjoy the added benefits of eco-friendly solar panels, a Tesla battery for energy storage, and an EV charger, making it a great choice for environmentally conscious buyers.
The layout includes a cozy lounge and a spacious family room enhanced by bi-fold doors that seamlessly connect indoors with the outdoor patio. On the upper level, you'll find four good-sized bedrooms, including a main bedroom featuring a walk-in wardrobe space, alongside a family bathroom.
While this property is well-maintained, potential buyers should note the average size of rooms and the needs of a growing family. The family-friendly neighborhood boasts excellent local schools rated ‘Good’ by Ofsted, ensuring quality education within close proximity. Don’t miss out on this desirable family home with ability for future renovations or expansions. The combination of spacious living, eco-features, and a great community makes this an attractive investment opportunity that is sure to be in high demand. Act quickly to secure this gem before it’s gone!
4 bedroom semi-detached house for sale in Benson, Wallingford, OX10 — £525,000 • 4 bed • 2 bath • 1382 ft²
3 bedroom detached bungalow for sale in Westfield Road, Benson, OX10 — £475,000 • 3 bed • 1 bath • 1079 ft²
4 bedroom detached house for sale in China Piece, Benson, Wallingford, Oxfordshire, OX10 — £675,000 • 4 bed • 3 bath • 2101 ft²
5 bedroom detached house for sale in Horseshoes Lane, Benson, Wallingford, Oxfordshire, OX10 — £690,000 • 5 bed • 4 bath • 1559 ft²
3 bedroom semi-detached house for sale in Offas Close, Benson, OX10 — £400,000 • 3 bed • 2 bath • 940 ft²
4 bedroom detached house for sale in Horseshoes Lane, Benson, OX10 — £525,000 • 4 bed • 2 bath • 1358 ft²














































































