Move‑in ready four-bedroom house close to beach, schools and transport links.
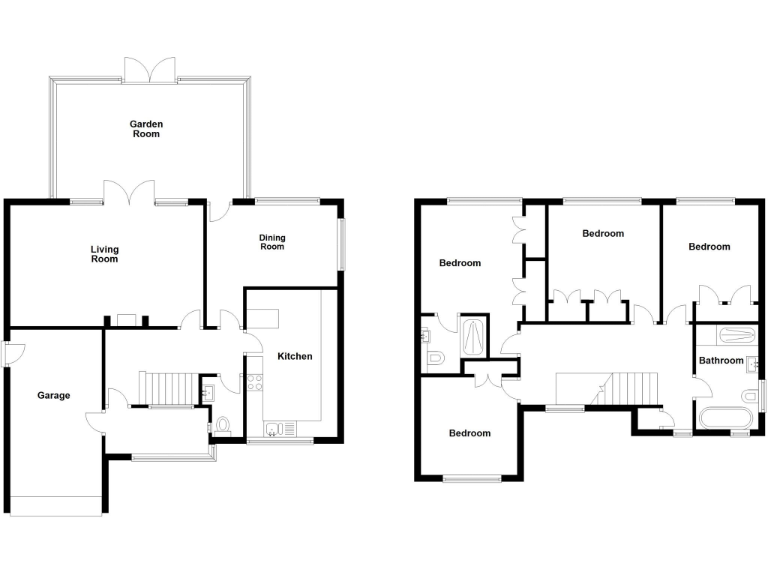
4 double bedrooms with refitted en‑suite and luxury family bathroom (2025)
Newer main systems: combi boiler 2020, roof 2022, re‑wired c.2017
Refitted breakfast kitchen (2020) and spacious garden room
Sunny south-facing rear garden, raised decking and two patios
Garage, gated driveway for 3–4 cars and EV charging point
Loft boarded with three Velux windows — good storage potential
Freehold property; council tax Band E (above average)
Post‑war build with standard ceiling heights
This well-updated four-bedroom detached house in Whitley Bay offers a ready-to-move-in family home with generous living space and thoughtful modern upgrades. Recent improvements include a refitted kitchen (2020), new bathroom (2025), re-roof (2022), re-wire (c.2017) and a combi boiler (2020), reducing immediate maintenance needs.
Light-filled reception rooms include a large lounge with log burner and an extended garden room that opens onto a sunny south-facing rear garden. The garage, gated driveway with EV charging point and room for several cars make school runs and weekend trips straightforward. The loft is boarded and accessed by a folding ladder, adding useful storage.
Location suits families: the beach and promenade are within walking distance, Monkseaton Metro station is nearby, and several well-rated local schools lie in the catchment area. Broadband and mobile signals are strong and the neighbourhood is very low-crime and affluent.
Practical points to note: council tax is above average (Band E) and the house is post‑war construction with standard ceiling heights. Tenure is freehold. Overall, the property blends character features with modern conveniences — ideal for growing families who want a spacious, low-maintenance home near the coast.
4 bedroom detached house for sale in Monkseaton Drive,
Whitley Bay, Tyne and Wear,
NE26 3DH, NE26 — £585,000 • 4 bed • 1 bath • 1447 ft²
4 bedroom detached house for sale in Monkseaton Drive,
Whitley Bay, Tyne and Wear,
NE26 3DQ, NE26 — £795,000 • 4 bed • 1 bath • 2331 ft²
4 bedroom semi-detached house for sale in Hamilton Drive, Whitley Bay, Tyne and Wear, NE26 1JQ, NE26 — £530,000 • 4 bed • 2 bath • 1389 ft²
6 bedroom detached house for sale in Beaumont Drive,
Beaumont Park, Whitley Bay,
NE25 9UT, NE25 — £899,950 • 6 bed • 3 bath • 5747 ft²
4 bedroom detached house for sale in Beaconsfield Close, Whitley Bay, NE25 — £499,950 • 4 bed • 1 bath • 1600 ft²
4 bedroom semi-detached house for sale in Willoughby Drive,
Whitley Lodge, Whitley Bay,
NE26 3DY, NE26 — £415,000 • 4 bed • 2 bath • 1296 ft²


















































































































































































































