**Standout Features:**
- Grade II listed cross-wing farmhouse dating back to the 16th century
- 5 spacious bedrooms with 3 en-suites
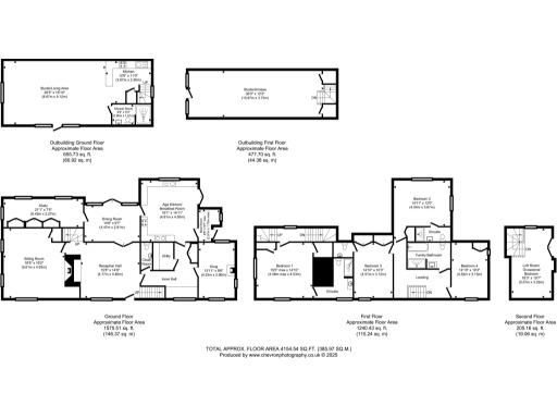
- AGA kitchen/breakfast room, large study, and cozy snug
- Expansive grounds of approximately 2.9 acres, including a paddock and vegetable garden
- Detached party barn/annexe/studio with rental potential
- No onward chain for a quicker move-in
**Property Summary:**
Explore the charm of Wagger Farm, an impressive Grade II listed farmhouse nestled in the serene countryside of Kettlebaston, Suffolk. This enchanting property boasts a wealth of character, featuring original period details throughout its 4,155 square feet of living space. The versatile layout spans three levels, accommodating a generous reception hall, inviting drawing room, snug, and a bright dining room that opens directly to the beautifully landscaped gardens.
The heart of the home, an AGA kitchen/breakfast room, provides modern amenities paired with traditional design, making it an ideal gathering space for family and friends. With five well-proportioned bedrooms, three of which are en-suite, this residence is perfect for families or as an investment for multi-generational living. The generous grounds host lush lawns, a vegetable garden, and a unique detached barn offering potential as a studio, guest suite, or rental opportunity—subject to necessary permissions.
While the property radiates tranquility and charm, it's essential to note its historic listing may limit renovation opportunities. The picturesque setting across approximately 2.9 acres ensures ample space for both leisure and privacy, presenting a rare opportunity for country living. With low crime rates and access to well-rated local schools, Wagger Farm is not just a home, but a lifestyle wait to be embraced. Act quickly to secure this unique gem—properties like this don’t stay on the market long!
4 bedroom farm house for sale in Whepstead, Bury St Edmunds, IP29 — £925,000 • 4 bed • 3 bath • 2200 ft²
5 bedroom detached house for sale in Great Wratting, Haverhill, Suffolk, CB9 — £995,000 • 5 bed • 2 bath • 3076 ft²
6 bedroom detached house for sale in Whepstead, Bury St. Edmunds, Suffolk., IP29 — £825,000 • 6 bed • 2 bath • 4942 ft²
4 bedroom detached house for sale in Kirtling, Suffolk, CB8 — £899,995 • 4 bed • 3 bath • 2550 ft²
4 bedroom detached house for sale in Assington, Sudbury, Suffolk, CO10 — £825,000 • 4 bed • 2 bath • 2000 ft²
4 bedroom detached house for sale in Wades Lane, Chelmondiston, Ipswich, IP9 — £895,000 • 4 bed • 2 bath • 2489 ft²










































































































































