Charming two-bedroom home minutes from High Street and top local schools.
Less than a mile from Brentwood station and High Street
This well-presented two-bedroom mid-terrace sits on a quiet street under a mile from Brentwood station, offering easy commuting and close access to the High Street. The house retains period character — exposed brick fireplace, cornice and sash-style windows — combined with a contemporary kitchen and modern bathroom for move-in convenience.
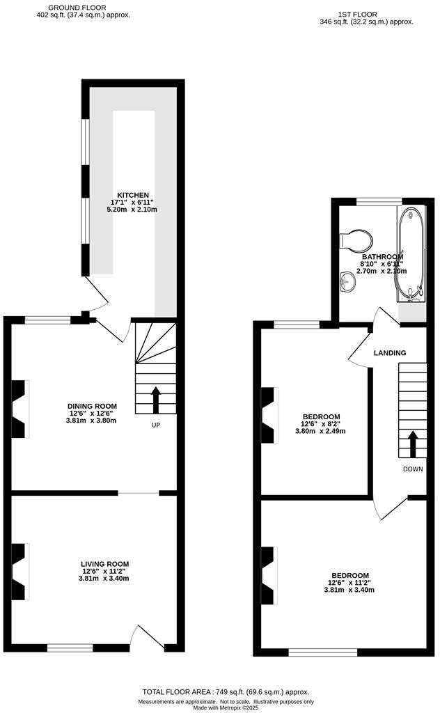
Ground floor layout includes two reception rooms and a long galley kitchen leading to a private rear garden. Room proportions are modest, so the house suits first-time buyers or commuters seeking a compact, low-maintenance home. There is clear scope to reconfigure the ground floor into a more open plan layout to increase living space, subject to structural advice and any consents.
The property is freehold and in good decorative order throughout, making it straightforward to occupy or let. Note that the dwelling is a traditional solid-brick terrace (likely no cavity insulation) and the plot and rooms are small, so run costs and refurbishment to modern standards should be considered. Local schools are highly regarded and the location is convenient for shops and services.
Buyers should be aware of a very high local crime rate recorded for the area; sensible security measures and local enquiries are advised. Overall this cottage offers character, commuter convenience and realistic potential to add value via modest updating or internal reconfiguration.
2 bedroom cottage for sale in Junction Road, Warley, Brentwood, CM14 — £465,500 • 2 bed • 1 bath • 563 ft²
2 bedroom terraced house for sale in Western Road, Brentwood, CM14 — £425,000 • 2 bed • 1 bath • 721 ft²
2 bedroom terraced house for sale in North Road Avenue, Brentwood, CM14 — £410,000 • 2 bed • 1 bath • 592 ft²
2 bedroom terraced house for sale in Ongar Road, Brentwood, CM15 — £400,000 • 2 bed • 1 bath • 590 ft²
2 bedroom terraced house for sale in Deans Road, Warley, CM14 — £375,000 • 2 bed • 1 bath • 797 ft²
2 bedroom terraced house for sale in Kings Chase, Brentwood, CM14 — £475,000 • 2 bed • 1 bath • 816 ft²






































