Compact, modernised two-bed cottage with parking and easy commuter links..
Two double bedrooms and modern open-plan living space
0.8 miles to Brentwood Station — good for commuters
Off-street parking for one vehicle and small low-maintenance garden
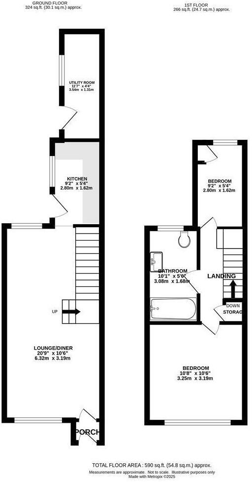
Larger-than-average utility room adds storage and function
Compact footprint ~590 sq ft — small overall internal space
Period brick exterior shows age; external modernisation likely needed
Solid brick walls (likely no cavity insulation) — potential energy upgrade
Local crime reported as very high — consider security measures
This compact two-bedroom period terrace sits within walking distance of Brentwood High Street and 0.8 miles from Brentwood Station, making it a practical pick for first-time buyers or commuters. The interior has been updated with a modern open-plan living and dining area, a fitted kitchen and a useful larger-than-average utility room, so it feels fresh and move-in ready on the ground floor.
Outside space is modest but low-maintenance: a small tiered garden with AstroTurf and a patio, plus an enclosed forecourt providing off-street parking for one car. The property is in a popular school catchment and close to Weald Country Park and King Georges playing fields, offering family-friendly amenities and quick access to the A12/M25.
Buyers should note the house is small (approximately 590 sq ft) and retains solid brick walls likely without cavity insulation. The exterior shows period brickwork that will need cosmetic updating and there are signs of damp and general age externally. Crime levels in the immediate area are reported as very high, which may influence buyer priorities around security and insurance. Council tax is described as affordable and the freehold tenure is a positive for long-term owners or investors.
2 bedroom cottage for sale in Junction Road, Warley, Brentwood, CM14 — £475,000 • 2 bed • 1 bath • 563 ft²
2 bedroom house for sale in Ongar Road, Brentwood, CM15 — £365,000 • 2 bed • 1 bath • 620 ft²
2 bedroom terraced house for sale in Kings Chase, Brentwood, CM14 — £465,000 • 2 bed • 1 bath • 841 ft²
2 bedroom terraced house for sale in North Road Avenue, Brentwood, CM14 — £365,000 • 2 bed • 1 bath • 602 ft²
2 bedroom end of terrace house for sale in Alfred Road, Brentwood, CM14 — £385,000 • 2 bed • 1 bath • 609 ft²
2 bedroom terraced house for sale in Kings Chase, Brentwood, CM14 — £475,000 • 2 bed • 1 bath • 816 ft²














































































































