Close to station and good schools; onward chain complete and ready to move into.
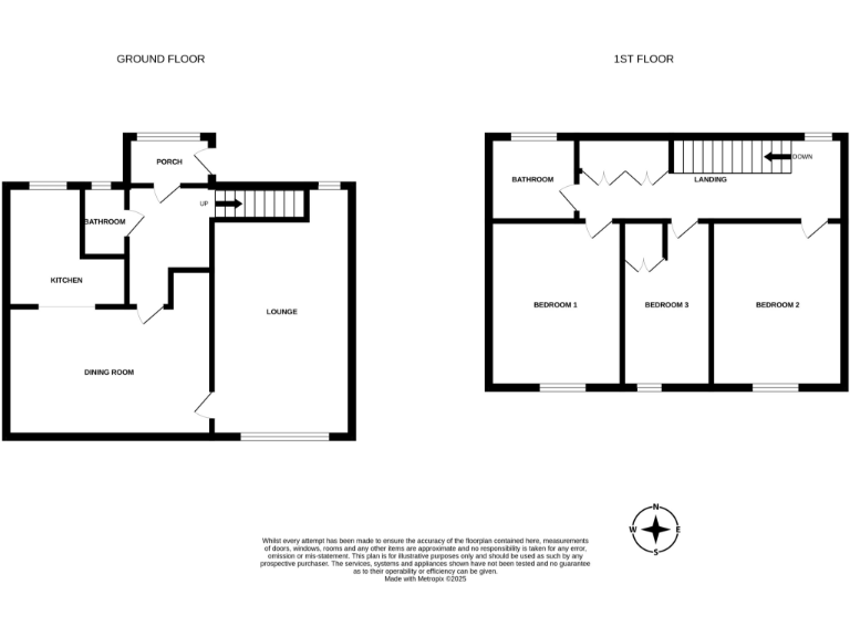
Three bedrooms plus family bathroom and ground-floor cloakroom
Freehold terraced house, approximately 616 sq ft
Short walk to Witham mainline station and local schools
Rear garden with storage shed; useful outdoor space
Onward chain complete — prompt legals and move possible
Above-average local crime and higher area deprivation
Small overall floorplate may feel tight for larger families
Fast broadband and average mobile signal for commuting
This compact three-bedroom mid-terrace offers practical family accommodation in a highly convenient Witham location. The ground floor features a bright entrance porch, hallway, lounge and a kitchen/diner that opens to the rear garden — useful for family meals and daily routines. A ground-floor cloakroom adds everyday convenience.
Upstairs there are three well-proportioned bedrooms and a family bathroom with a white suite. The property is freehold, extends to approximately 616 sq ft and benefits from fast broadband and a private garden with a storage shed. Onward chain is complete, so the home is ready for a straightforward move.
Location is a major asset: the house is within walking distance of Witham Mainline Train Station (direct services to London Liverpool Street), primary and secondary schools rated Good, and local amenities and bus links. These features suit commuters and families who prioritise schooling and transport.
Buyers should note material drawbacks plainly: the overall living space is small for a three-bedroom house and the neighbourhood records above-average crime and higher deprivation indicators. The wider area is described as serving young, hard-pressed families, which may affect long-term resale expectations. No flooding risk is recorded.
3 bedroom terraced house for sale in Court Nineteen, Witham, CM8 — £290,000 • 3 bed • 1 bath • 915 ft²
3 bedroom terraced house for sale in Allectus Way, Witham, Essex, CM8 — £270,000 • 3 bed • 1 bath • 598 ft²
3 bedroom semi-detached house for sale in Hamble Close, Witham, CM8 — £340,000 • 3 bed • 1 bath • 928 ft²
3 bedroom end of terrace house for sale in Yew Close, Witham, Essex, CM8 — £325,000 • 3 bed • 1 bath • 912 ft²
3 bedroom terraced house for sale in Powers Hall End, Witham, Essex, CM8 — £320,000 • 3 bed • 1 bath • 728 ft²
3 bedroom end of terrace house for sale in Homefield Road, Witham, Essex, CM8 — £270,000 • 3 bed • 2 bath • 714 ft²






















































































