High‑spec 4-bed barn on 0.5 acre with energy-saving tech and farmland views.
Four double bedrooms; three with en-suites
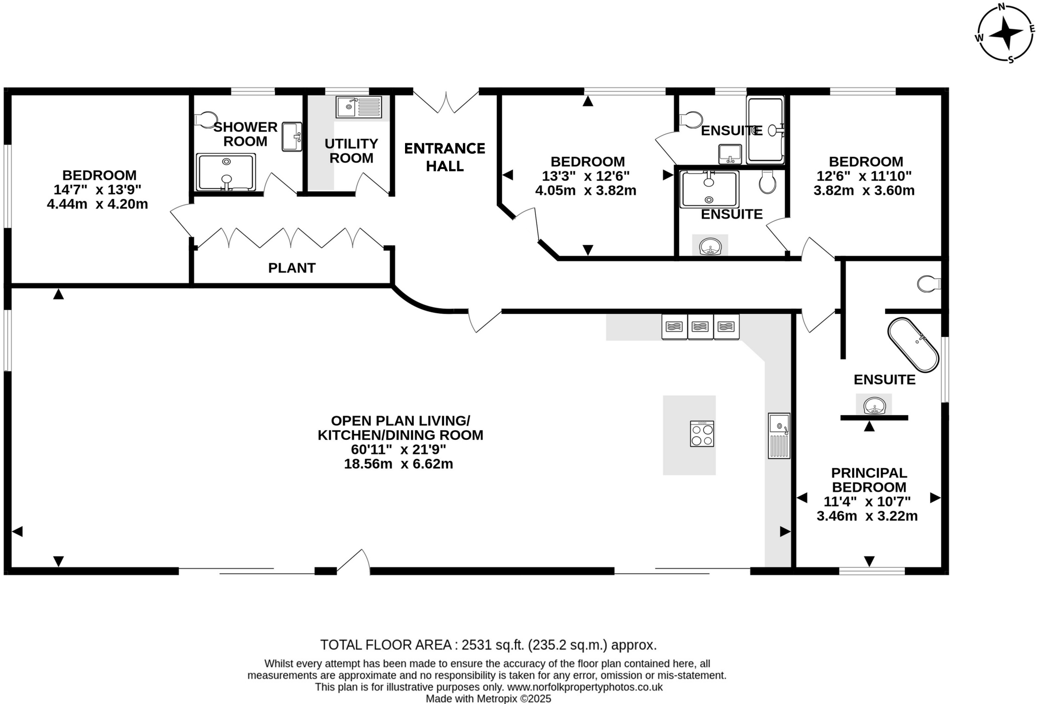
A high-spec four-bedroom barn conversion finished to a contemporary standard, set in about 0.5 acre with open farmland views. The layout centres on a large open-plan kitchen, living and dining room with high ceilings and expansive glazing — an entertaining space that maximises the rural outlook. Three bedrooms have en-suite facilities and there is a separate utility and plant room, while the accommodation extends to around 2,531 sq ft.
The house has been finished with energy efficiency in mind: an air-source heat pump, rooftop solar panels and battery storage reduce running costs. Off-road parking for numerous vehicles and a gated driveway provide practical access and secure parking in this quiet lane location. The property sits on the edge of Middleton with easy driving distance to Westleton, Southwold and Aldeburgh and walking access to local amenities including a primary school and village pubs.
Be clear about the practical trade-offs: the home uses LPG as the main fuel and retains a boiler and radiators system, and council tax is noted as expensive. Mobile and broadband speeds are average and the setting is hamlet/isolated, which suits buyers prioritising rural privacy but may not suit those needing fast connectivity or frequent urban commuting. The conversion is recent and high-quality, but buyers wanting town-centre convenience or urban transport links should factor in travel times.
5 bedroom barn conversion for sale in Middleton Moor, Middleton, Saxmundham, IP17 — £1,100,000 • 5 bed • 5 bath • 4149 ft²
Land for sale in Middleton, Saxmundham, Suffolk, IP17 — £300,000 • 1 bed • 1 bath • 3660 ft²
5 bedroom barn conversion for sale in Sotterley Road, Henstead, Beccles, NR34 — £1,000,000 • 5 bed • 3 bath • 3148 ft²
Detached house for sale in Middleton, Saxmundham, Suffolk, IP17 — £300,000 • 1 bed • 1 bath • 3660 ft²
3 bedroom barn conversion for sale in Shipmeadow, Beccles, NR34 — £500,000 • 3 bed • 2 bath • 1629 ft²
5 bedroom barn conversion for sale in Ilketshall St. Andrew, Beccles, NR34 — £575,000 • 5 bed • 3 bath • 4028 ft²














































































































