Ideal for growing families near top-rated schools and fast transport links.
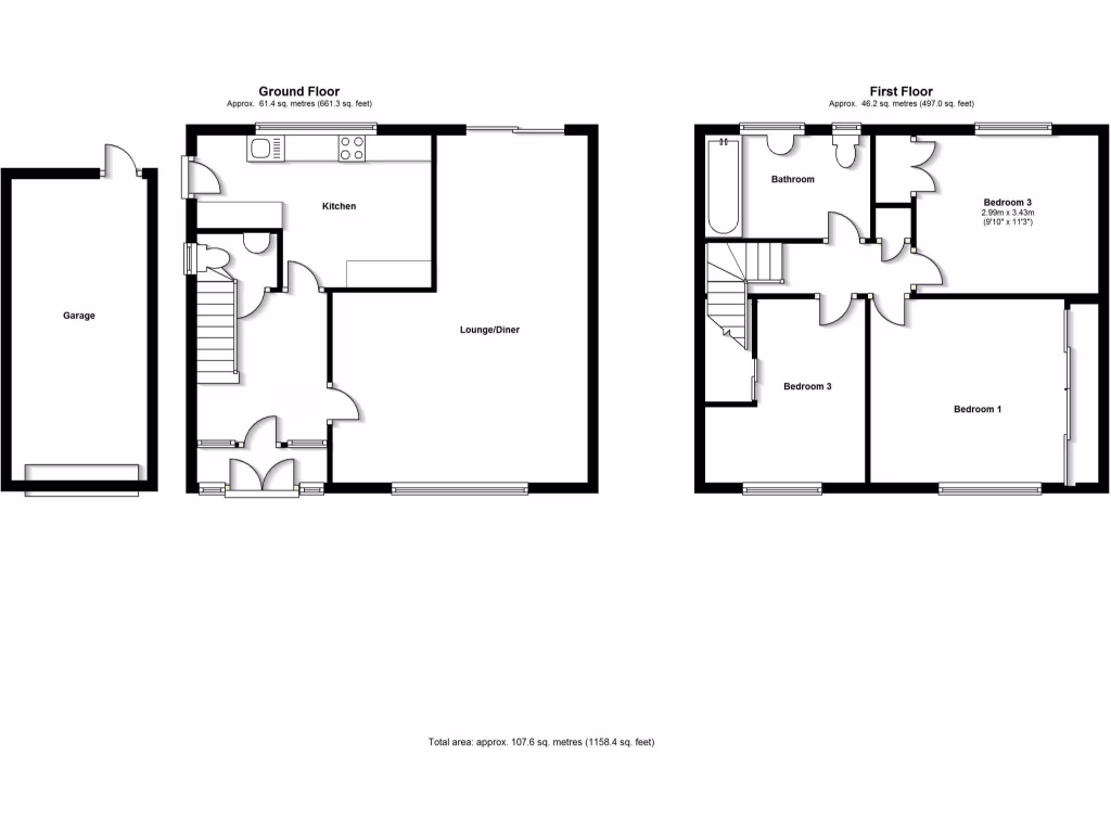
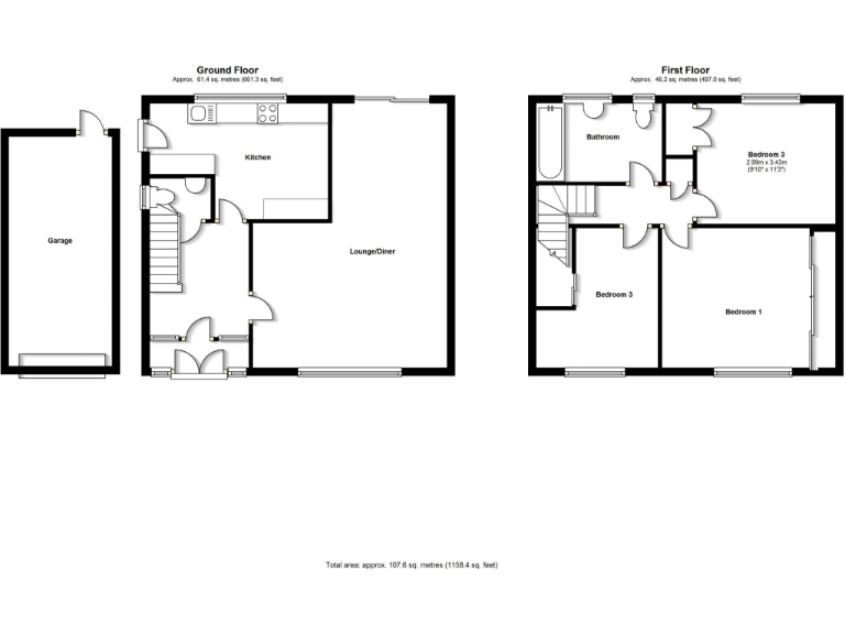
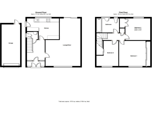
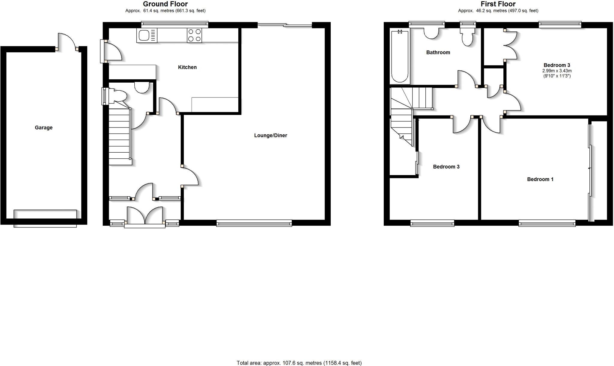
Detached three-bedroom house with garage and private driveway
Set on a quiet Hatch End street, this three-bedroom detached house offers a practical family layout and straightforward ownership — freehold and no upper chain. The lounge/diner, fitted kitchen and downstairs cloakroom create flexible ground-floor living, while three first-floor bedrooms and a family bathroom suit everyday family life.
Outside, the secluded rear garden and detached garage accessed via your own drive are standout practical assets for parking and storage. Double glazing (installed post-2002) and a mains gas boiler delivering central heating provide ready comfort. The plot is a decent size and there is clear scope to extend or reconfigure the footprint, subject to planning (STPP), for buyers seeking added living space or improved resale value.
Practical considerations: the property is an average-sized 1,158 sq ft home with a single bathroom, so families seeking more bathrooms would need to plan alterations. Council tax is described as expensive and the house will suit buyers prepared to modernise parts of the interior to their taste. Local amenities, strong schools and fast broadband make this an attractive, well-connected suburban option.
3 bedroom house for sale in Sequoia Park, Hatch End, Pinner, HA5 — £800,000 • 3 bed • 1 bath • 1214 ft²
4 bedroom detached house for sale in Sequoia Park, Pinner, HA5 — £1,150,000 • 4 bed • 2 bath • 1708 ft²
5 bedroom detached house for sale in The Avenue, Hatch End, Pinner, HA5 — £1,300,000 • 5 bed • 3 bath • 2680 ft²
4 bedroom detached house for sale in Cedar Drive, Hatch End, Pinner HA5 — £1,000,000 • 4 bed • 2 bath • 1749 ft²
4 bedroom detached house for sale in Royston Grove, Pinner, Middlesex, HA5 — £1,375,000 • 4 bed • 3 bath • 2585 ft²
4 bedroom detached house for sale in Sequoia Park, Pinner, HA5 — £1,150,000 • 4 bed • 2 bath • 1012 ft²


































