Ready-to-move-in period flat close to Walton station and shops.
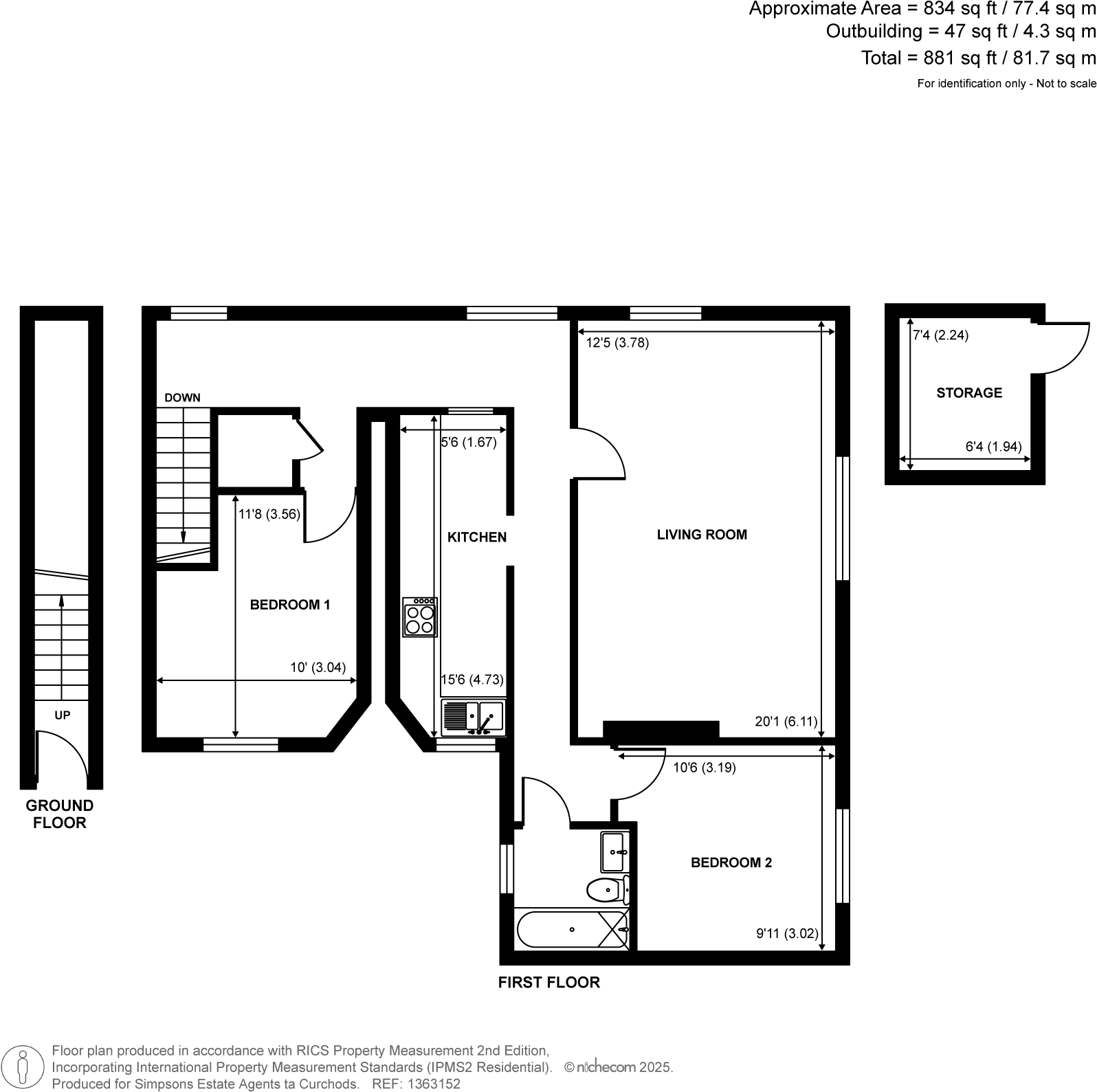
Two-bedroom first-floor maisonette with private rear garden
New boiler installed; recently redecorated and externally remedied
Two off-street parking spaces on shingle drive
Share of freehold in progress; c.927–928 years remaining on lease
Bright reception room with feature fireplace and integrated kitchen
Average overall size; modest bedrooms and single family bathroom
Solid-brick circa 1900 construction; wall insulation not confirmed
Short walk to Walton station, shops; fast broadband and excellent mobile signal
This well-presented two-bedroom first-floor maisonette sits down a private lane in popular Rydens Road, a short walk from Walton station and local shops. The flat benefits from recent redecoration, a new gas boiler, updated external works to windows and roof, and a neatly landscaped private rear garden with a shed — ready to move into for first-time buyers seeking convenience and character.
The accommodation is bright and neutrally finished throughout, with a large reception room featuring a fireplace, an efficient kitchen with integrated appliances and space for freestanding items, two modest bedrooms and a family bathroom. Practical extras include two off-street parking spaces on a shingle drive and fast broadband and mobile signal for home working.
Tenure is share of freehold with a long lease (approximately 927–928 years remaining) and work is underway to finalise the share of freehold change; once implemented, no ground rent will be payable. Council tax is moderate and the property carries no flood risk.
Notable points to consider: the overall internal area is average for a two-bedroom town property and there is a single bathroom, which may suit smaller households or couples rather than growing families. The building is a circa 1900 solid-brick construction and wall insulation is not confirmed, so buyers prioritising energy efficiency may wish to investigate further. Despite these considerations, the maisonette offers a ready-to-live-in period home with parking, garden and excellent transport links.
2 bedroom apartment for sale in St Vincent Road, Walton-on-Thames, Surrey, KT12 — £325,000 • 2 bed • 1 bath • 773 ft²
2 bedroom maisonette for sale in Gladsmuir Close, Walton-on-Thames, KT12 — £399,950 • 2 bed • 1 bath • 825 ft²
2 bedroom maisonette for sale in New Zealand Avenue, Walton-On-Thames, KT12 — £365,000 • 2 bed • 1 bath • 708 ft²
2 bedroom flat for sale in Rydens Avenue, Walton-On-Thames, KT12 — £350,000 • 2 bed • 1 bath • 732 ft²
2 bedroom maisonette for sale in Terrace Road, Walton-On-Thames. , KT12 — £285,000 • 2 bed • 1 bath • 701 ft²
2 bedroom flat for sale in Devoke Way, Walton-On-Thames, KT12 — £310,000 • 2 bed • 1 bath • 620 ft²










































































