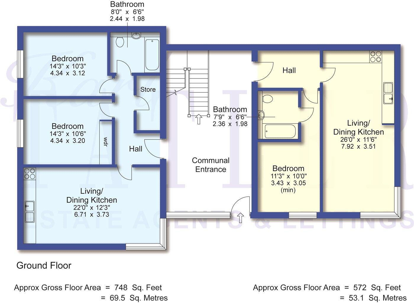
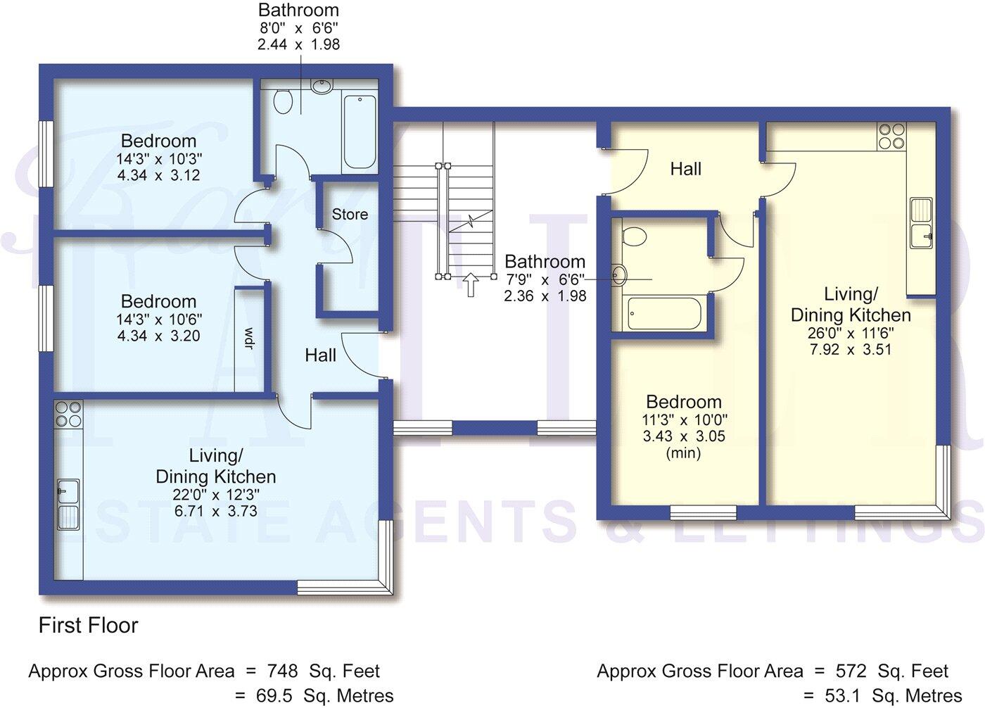
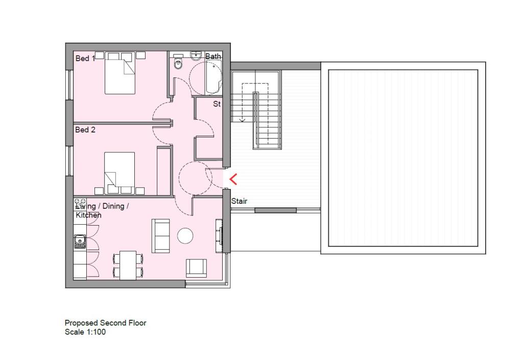
Previously approved scheme for five apartments close to transport and park.
0.212-acre cleared development plot, level and ready for works
A cleared 0.212-acre development plot in central Birkenhead, offered with a referenced title (MS352142) and previously granted planning for five apartments. The site is immediately usable for a developer who wants a short lead-time if they can reinstate or replace the lapsed consent. It benefits from good transport connections, proximity to Mersey Park and Birkenhead town centre, and no reported flood risk.
The former planning approval (APP/22/00514, April 2022) covered a part two/part three-storey block delivering five apartments, communal gardens and allocated parking. The plot is level and cleared, which reduces initial site preparation time and cost. Broadband and mobile signals are strong and there is on-plot parking/garage provision shown in previous proposals.
Buyers should note the approval has lapsed and will require either a renewal or a fresh application; planning and associated S106 or local requirements may have changed since 2022. The local area scores high on deprivation indices and records elevated crime levels—important factors for valuations, lettings and resale assumptions. Title is referenced as MS352142 (Freehold) in the supplied details, but tenure is also listed as unknown; prospective purchasers must verify legal title and any covenants or easements.
This plot is best suited to small-scale developers or investors targeting affordable apartment supply or a rental scheme, prepared to manage planning risk and local market challenges. There is clear potential to deliver a compact scheme with low site clearance costs, but pricing and viability should reflect local demand, crime and social-economic context.
Commercial property for sale in Land At Park Street, Birkenhead, Merseyside, CH41 3PE, CH41 — £50,000 • 1 bed • 1 bath
Land for sale in Development Site Conway Street, Birkenhead, Merseyside, CH41 — £1,500,000 • 1 bed • 1 bath
Land for sale in Noctorum Road, Prenton, Wirral, CH43 — £500,000 • 1 bed • 1 bath • 6000 ft²
Land for sale in Spital Road, Bebington, Wirral, CH63 — £300,000 • 1 bed • 1 bath • 8608 ft²
Commercial development for sale in Former MOD Site, Old Hall Road, Bromborough, Wirral, North West, CH62 — POA • 1 bed • 1 bath
Land for sale in Mill Road/ Spital Road, Bromborough, CH62 — £300,000 • 1 bed • 1 bath • 1162 ft²


































