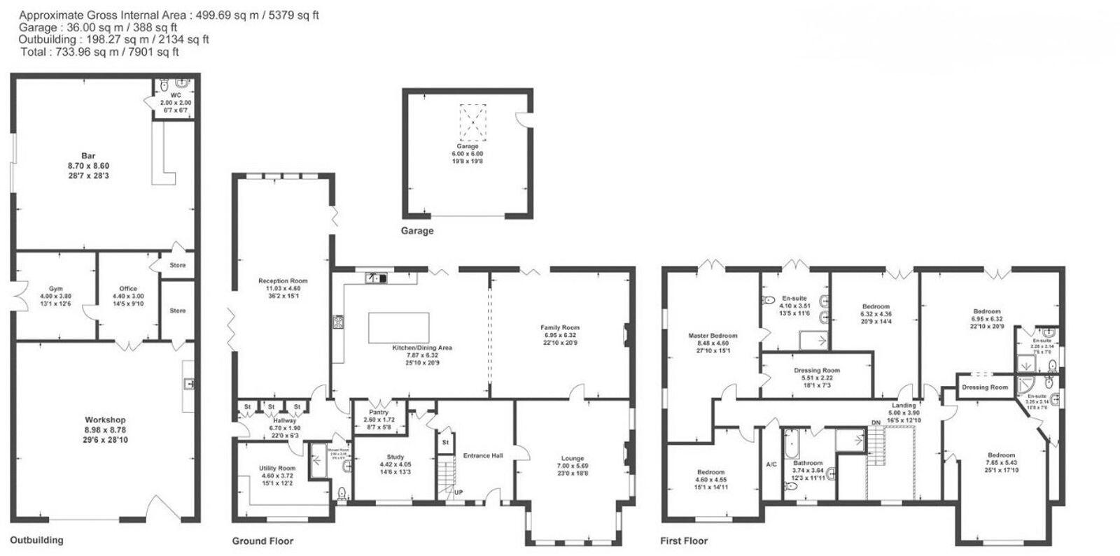
Exceptional 5-bed family home with extensive outbuildings and development potential on 4.2 acres..
- Over 5,000 sq ft of versatile living space
- Five double bedrooms and five bathrooms
- Luxury principal suite with private balcony
- Open-plan kitchen with hidden walk-in pantry
- Substantial outbuilding with private pub, gym and office
- 4.2 acres including paddock; glamping planning submitted
- LPG heating (not mains gas) and EPC D
- Very expensive council tax banding
Marsh View is an exceptionally spacious, owner-finished detached house set within 4.2 acres in peaceful Hambleton. The property delivers over 5,000 sq ft of flexible living, including five double bedrooms, five bathrooms and a luxury principal suite with a private balcony. The showstopping open-plan kitchen with bifolds onto a porcelain patio sits at the heart of the home, designed for family life and entertaining.
The grounds and outbuildings are a major part of the offer: a substantial outbuilding with its own gated driveway currently houses a private bar, gym, office and WC and could suit business, equestrian or leisure uses subject to consents. The paddock offers real potential for stables or an income stream — planning for glamping pods has been submitted and is pending a decision. A detached double garage, sweeping gravel driveway and generous guest parking complete the practical picture.
Buyers should note a few practical points: heating is supplied by an LPG boiler rather than mains gas, the EPC is a D, and the council tax banding is very expensive. The outbuildings and any change of use for business, equestrian or glamping purposes will require the necessary permissions. Overall, this is a rare countryside family home that also suits buyers seeking home-based business, leisure facilities or development potential.
5 bedroom detached house for sale in Carr Lane, Hambleton, Poulton-le-Fylde, Lancashire, FY6 — £600,000 • 5 bed • 4 bath • 2117 ft²
5 bedroom detached house for sale in Carr Lane , Hambleton, FY6 — £875,000 • 5 bed • 4 bath • 2884 ft²
6 bedroom detached house for sale in Staynall Lane, Hambleton, FY6 — £590,000 • 6 bed • 3 bath • 2920 ft²
9 bedroom detached house for sale in Park Hill, Bull Park Lane, Hambleton, Poulton-Le-Fylde, Fylde Coast, Lancashire, FY6 9DD, FY6 — £1,295,000 • 9 bed • 6 bath • 3445 ft²
4 bedroom detached house for sale in Ingol Grove, Hambleton, FY6 — £500,000 • 4 bed • 3 bath • 1667 ft²
5 bedroom detached house for sale in 'The Sanctuary' St. Francis Mews, Hambleton, Lancs FY6 9FH, FY6 — £750,000 • 5 bed • 4 bath • 2918 ft²






























































































































































































































































































