Spacious family living near Old Town amenities and seafront.
- Newly renovated three-bedroom end-of-terrace, freehold
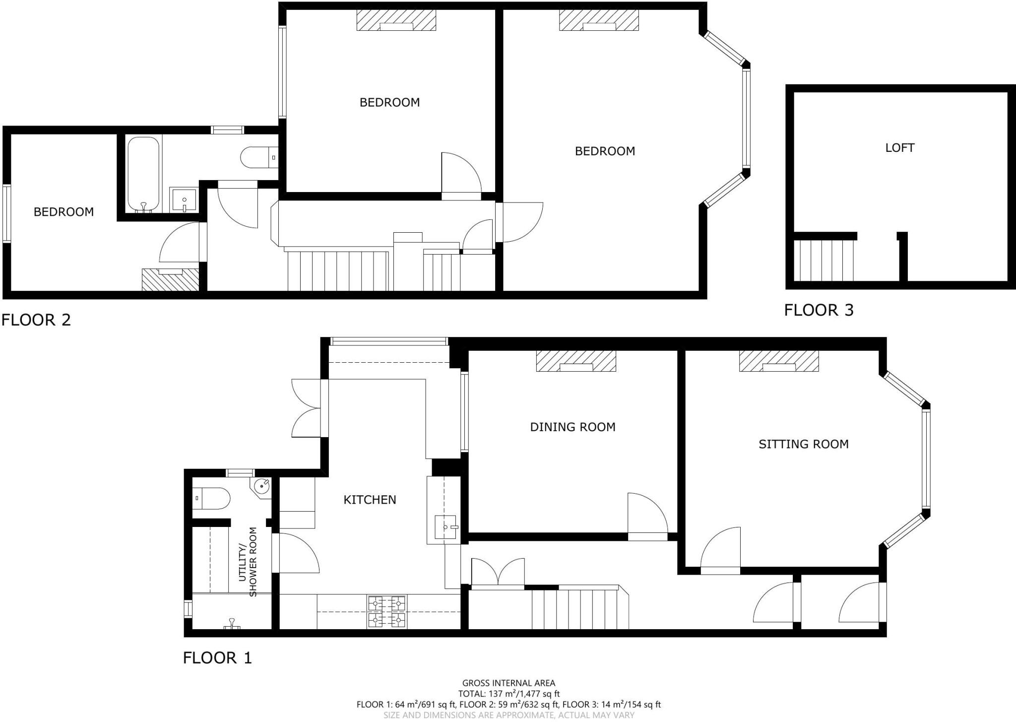
- 17' kitchen/breakfast room and separate dining room
- High-ceiling sitting room with bay window and original features
- Loft with Velux — storage or conversion potential (buyer checks)
- Low-maintenance rear garden; small overall plot size
- Double glazing and mains gas central heating (boiler and radiators)
- Affordable council tax; no flood risk
- Average local crime levels, city/major town setting
This large three-bedroom end-of-terrace blends Victorian character with recent renovation, ready for family life in Old Town. High ceilings, bay windows and original moldings sit alongside a 17' kitchen/breakfast room and a useful utility/shower room, giving practical space for everyday living.
Outside, the low-maintenance rear garden and modest front garden suit family outdoor use without onerous upkeep. The loft has a Velux window and offers extra storage or potential conversion subject to checks. The house benefits from double glazing, mains gas boiler heating and a newly refreshed interior, reducing immediate maintenance needs.
Location is a strong draw: local good-rated schools, Waitrose and St Mary’s Church are within walking distance, with the seafront, town centre and rail links to London and Gatwick all easily accessible. Flood risk is low and the property is freehold with affordable council tax.
Considerations: the plot is small for larger outdoor activities and the area records average crime levels. While recently renovated, buyers should inspect for any remaining minor works and factor in loft conversion costs if additional rooms are required.
3 bedroom terraced house for sale in Motcombe Road, Old Town, Eastbourne, BN21 — £525,000 • 3 bed • 1 bath • 1298 ft²
3 bedroom end of terrace house for sale in Vicarage Lane, Eastbourne, East Sussex, BN20 — £425,000 • 3 bed • 2 bath • 1246 ft²
3 bedroom terraced house for sale in Vicarage Road, Eastbourne, BN20 — £459,950 • 3 bed • 1 bath • 1143 ft²
3 bedroom terraced house for sale in New Place, Eastbourne, East Sussex, BN21 — £300,000 • 3 bed • 1 bath • 519 ft²
5 bedroom terraced house for sale in Hurst Road, Eastbourne, East Sussex, BN21 — £585,000 • 5 bed • 2 bath
4 bedroom end of terrace house for sale in Victoria Drive, Old Town, Eastbourne, East Sussex, BN20 — £585,000 • 4 bed • 2 bath • 1752 ft²














































































