**Standout Features:**
- Expansive total area of 2.079 acres.
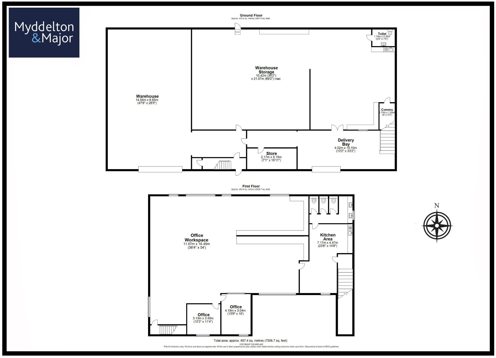
- Existing commercial building measuring 7,506.7 sq ft (697.40 sq m).
- Granted planning permission for an additional 16,066 sq ft (1,492.60 sq m) of warehouse space.
- Ample parking and open storage available.
- Excellent road communication via A303, A34, and network access to London and the South West.
**Potential Concerns:**
- Proximity to residential areas may require consideration of local zoning regulations.
- Commercial property in a largely residential neighborhood may face limitations in some business uses.
Nestled on the outskirts of Andover, The New Barn offers a unique opportunity for investors looking to capitalize on a prime commercial space in a burgeoning area. Spanning over 2 acres, this property features a well-constructed steel-framed building with generous warehouse and office facilities, making it ideal for a variety of industrial operations. The existing 7,500 sq ft space is complemented by planning permission for an additional 16,066 sq ft, allowing for future expansion tailored to your business needs.
The high ceilings and modern design of the warehouse stimulate efficiency and functionality, while the property is surrounded by ample parking and open storage areas. Local amenities and excellent transport links make this a convenient location, with easy access to major routes such as the A303 and A34. Don’t miss your chance to secure this exceptional commercial property that combines expansive outdoor space with adaptability and proximity to both residential and industrial centers.
Land for sale in Walworth Road, Picket Piece, Andover, SP11 — £1,400,000 • 1 bed • 1 bath • 7507 ft²
Land for sale in Abbotts Ann, SP11 — £1,000,000 • 1 bed • 1 bath • 12591 ft²
Warehouse for sale in Plot 31/32, North Way, Walworth Business Park, Andover, SP10 5BE, SP10 — £3,750,000 • 1 bed • 1 bath
Warehouse for sale in Plot 8 Andover Business Park, Monxton Road, Andover, SP11 8HT, SP11 — POA • 1 bed • 1 bath
Light industrial facility for sale in Plot 9, Andover Business Park, Andover, SP11 8BF, SP11 — £185 • 1 bed • 1 bath
Light industrial facility for sale in Plot 8, Andover Business Park, Andover, SP11 8BF, SP11 — £185 • 1 bed • 1 bath • 7692 ft²


















