TW17 0DX - 2 bedroom bungalow for sale in Wood Road, Shepperton, TW17

View on Property Piper

2 bedroom bungalow for sale in Wood Road, Shepperton, TW17

Summary - 60 WOOD ROAD SHEPPERTON TW17 0DX

2 bed 1 bath Bungalow

**Standout Features:**
- Newly renovated 2-bedroom semi-detached bungalow
- Attractive refitted kitchen with integrated appliances
- Modern 4-piece bathroom with separate shower
- Generously-sized 61ft south-east facing garden
- Off-street parking for two vehicles
- Excellent potential for loft and rear extensions (pending permissions)
- Located on a quiet residential road close to parks, reputable schools, and local shops
- Short walk to bus routes and Shepperton village station (0.9 miles)

Discover this beautifully updated 2-bedroom semi-detached bungalow setting a comfortable, light-filled tone for family living. Perfectly designed for modern tastes, the home features a stylish kitchen complete with integrated appliances and a contemporary 4-piece bathroom. The two spacious double bedrooms offer ample space for furniture, with the potential for an open-plan layout to create a seamless living space.

Step outside to find a generous 61ft low-maintenance garden, offering a private oasis for relaxation and entertainment, while off-street parking accommodates two vehicles. Situated just a short stroll from local amenities and reputable schools, this property blends convenience with tranquility in a desirable community.

Ideal for first-time buyers or small families, this home is not only move-in ready but also presents exciting opportunities for customization with the option for future extensions. With low crime rates and a vibrant neighborhood, seize this opportunity—properties like this don’t last long!

Property Details

Brochure Descriptions

Image Descriptions

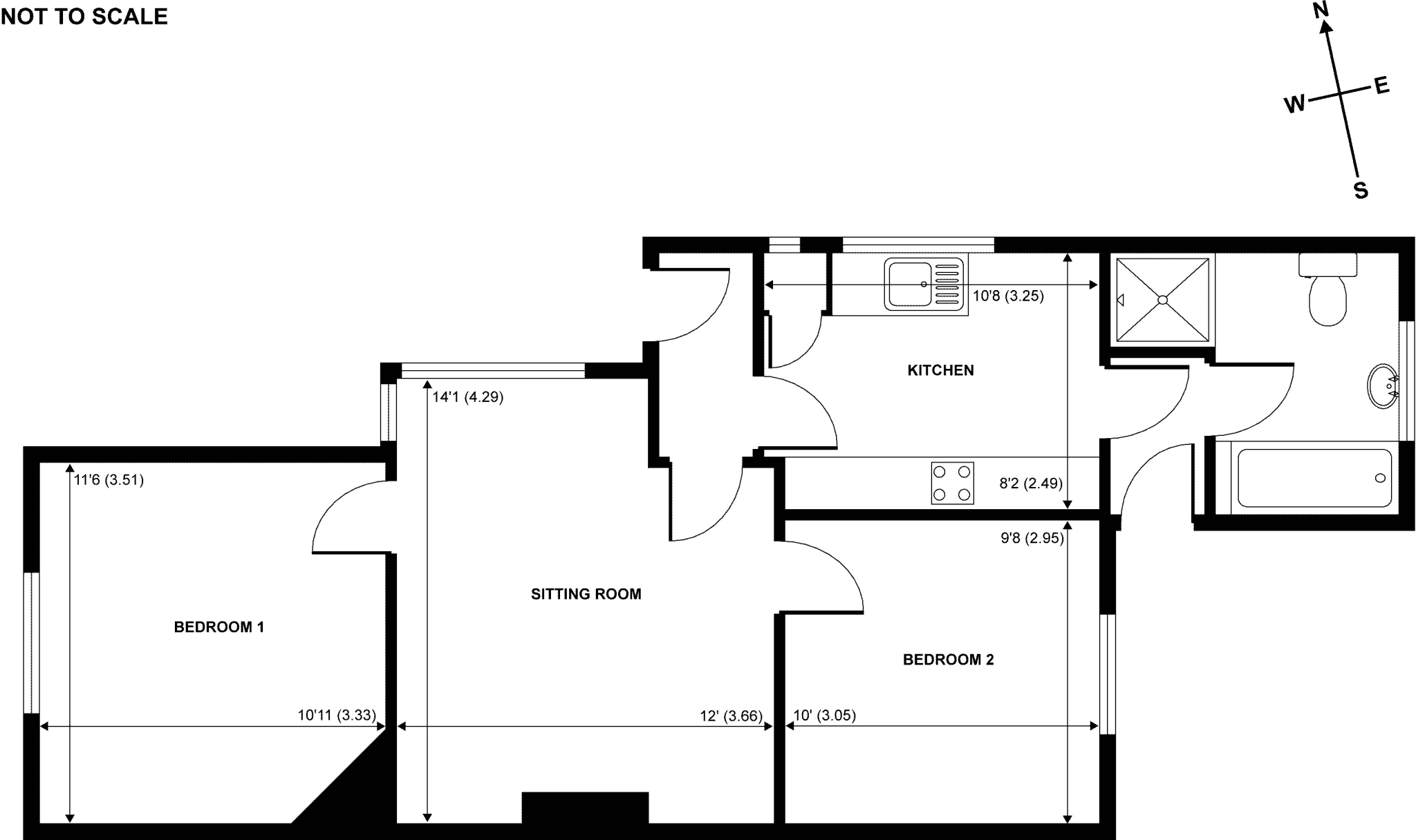
Floorplan Description

Rooms

Textual Property Features

Detected Visual Features

EPC Details

Nearby Schools

Nearest Bars And Restaurants

,,,,}

Nearest General Shops

,,}

Nearest Grocery shops

,,}

Nearest Supermarkets

,,}

Nearest Religious buildings

,,}

Nearest Medical buildings

,,,}

Nearest Airports

,}

Nearest Leisure Facilities

,,,,}

Nearest Tourist attractions

,,}

Nearest Train stations

,,,,}

Nearest Bus stations and stops

,,,,}

Nearest Hotels

,,}

Tags

Local Market Stats

AirBnB Data

Similar Properties

Meta

High Res Images

Compatible Images

Low res Images

Thumbnails

Raw Images

High Res Floorplan Images

Compatible Floorplan Images

Low res Floorplan Images

FloorplanImages Thumbnail

Raw Floorplan Images