Vacant industrial unit with strong rental potential close to M5.
Freehold detached warehouse on 0.2-acre site
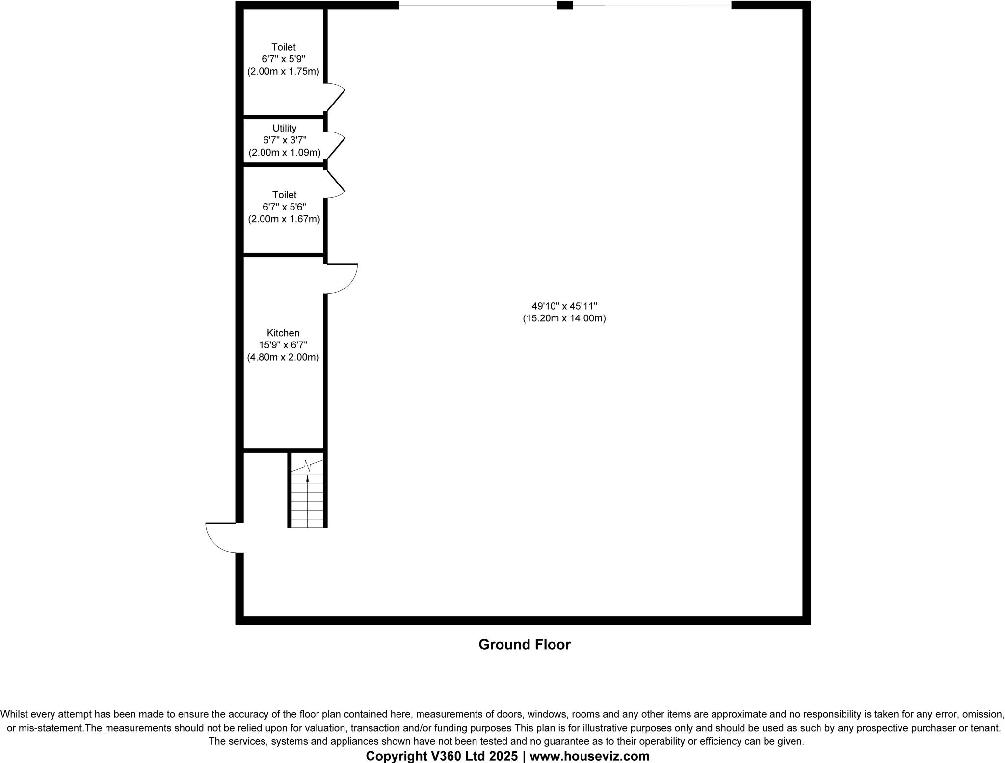
A substantial detached industrial warehouse occupying a 0.2-acre site on Sandy Lane Industrial Estate, offered freehold and vacant. The steel portal-framed unit includes a mezzanine office, kitchenette, two WCs and two roller shutters with a minimum internal height of 4.75m — practical for storage, light manufacturing or distribution. The large gated front yard (c.4,410 sqft) and additional rear yard provide significant vehicle manoeuvring and external storage capacity.
This location benefits from established neighbouring occupiers and straightforward access to the M5 via the A449 and A442 (approximately 11 miles to junctions 5 and 6). The property presents a strong headline yield potential (c.9–10%) for investors, supported by a modest asking price and a current rateable value of £14,750. Services understood to be available include electricity, water and drainage; purchasers must verify utility capacities against intended use.
Important negatives are stated plainly: the site is in a high flood-risk area and the local crime level and area deprivation are elevated — both factors likely to affect insurance costs, tenant types and rental levels. The EPC is rated D; energy and thermal improvements may be required to meet operational or tenant expectations. The unit has B2/B8 use class but purchasers should confirm planning suitability for specific operations and any works needed to adapt the premises.
Overall, this is a straightforward freehold industrial opportunity for investors or owner-occupiers seeking a large yarded unit with strong rental upside, subject to flood, security and energy considerations that will influence holding costs and any immediate works required.
Light industrial facility for sale in Sandy Lane Industrial Estate, DY13 — £145,000 • 1 bed • 1 bath • 2001 ft²
Commercial property for sale in Sandy Lane Industrial Estate, Stourport-On-Severn, Worcestershire, DY13 — £180,000 • 1 bed • 2 bath • 1681 ft²
Light industrial facility for sale in Hodfar Road, Stourport-on-Severn, DY13 — £225,000 • 1 bed • 1 bath • 3574 ft²
Light industrial facility for sale in Unit 13-14, Oldington Trading Estate, Kidderminster, Worcestershire, DY11 7QP, DY11 — POA • 1 bed • 1 bath • 14548 ft²
Industrial development for sale in Units 18, 19 20 Oldington Trading Estate, Kidderminster, Oldington Trading Estate, Kidderminster, DY11 7QP, DY11 — £800,000 • 1 bed • 1 bath • 16233 ft²
Industrial park for sale in Unit 111 Hartlebury Trading Estate Kidderminster Worcestershire DY10 4JB, DY10 — £3,750,000 • 1 bed • 1 bath


































































































