Two bathrooms, high ceilings and a private rear garden near Upper Street.
Private entrance with three floors of accommodation
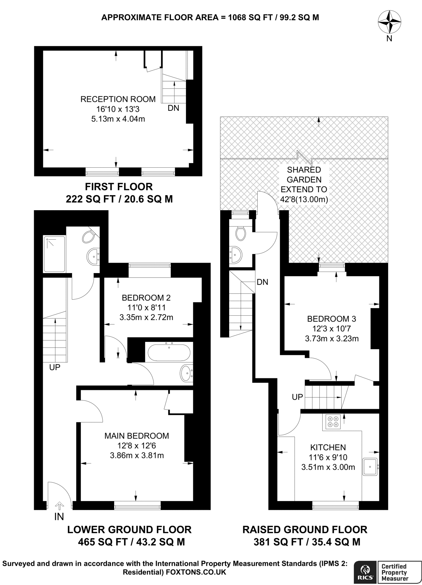
Set across three floors with its own private entrance, this 3-bedroom maisonette combines Georgian character with modern touches. High ceilings, large sash windows and original timber floors bring natural light and period charm to the living spaces, while two bath/shower rooms and a compact private rear garden add practical family-friendly benefits.
Located in Barnsbury off Liverpool Road, the flat sits within easy reach of Upper Street and Chapel Market amenities, frequent transport links and a strong mix of primary and secondary schools, including outstanding-rated local secondaries. At about 1,068 sq ft, the layout gives clear separation between living and sleeping areas — useful for family life or flexible working-from-home arrangements.
The property is leasehold and arranged over three floors, so stairs are an unavoidable feature and may limit accessibility. Although many period elements are intact, there is opportunity to update or reconfigure certain rooms to suit modern lifestyles, which may appeal to those seeking renovation potential.
Overall this maisonette will suit a family or professional household seeking character, good local schools and excellent central-N1 convenience, while accepting the trade-offs of leasehold tenure and the multi-floor arrangement.
3 bedroom maisonette for sale in Westbourne Road, Barnsbury, London, N7 — £1,100,000 • 3 bed • 3 bath • 1241 ft²
3 bedroom maisonette for sale in Offord Road, Islington, N1 — £1,390,000 • 3 bed • 2 bath • 1232 ft²
3 bedroom apartment for sale in Offord Road, Barnsbury, London, N1 — £1,390,000 • 3 bed • 2 bath • 1289 ft²
3 bedroom apartment for sale in Liverpool Road, Islington, London, N1 — £1,150,000 • 3 bed • 1 bath • 919 ft²
3 bedroom maisonette for sale in Westbourne Road,
Islington, N7 — £1,100,000 • 3 bed • 3 bath • 1220 ft²
3 bedroom maisonette for sale in St Pauls Road, Highbury, London, N1 — £650,000 • 3 bed • 2 bath • 850 ft²






































































































