Design and build a bespoke four-bedroom home close to town and countryside.
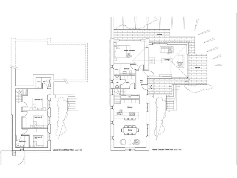
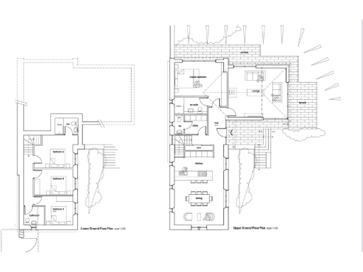
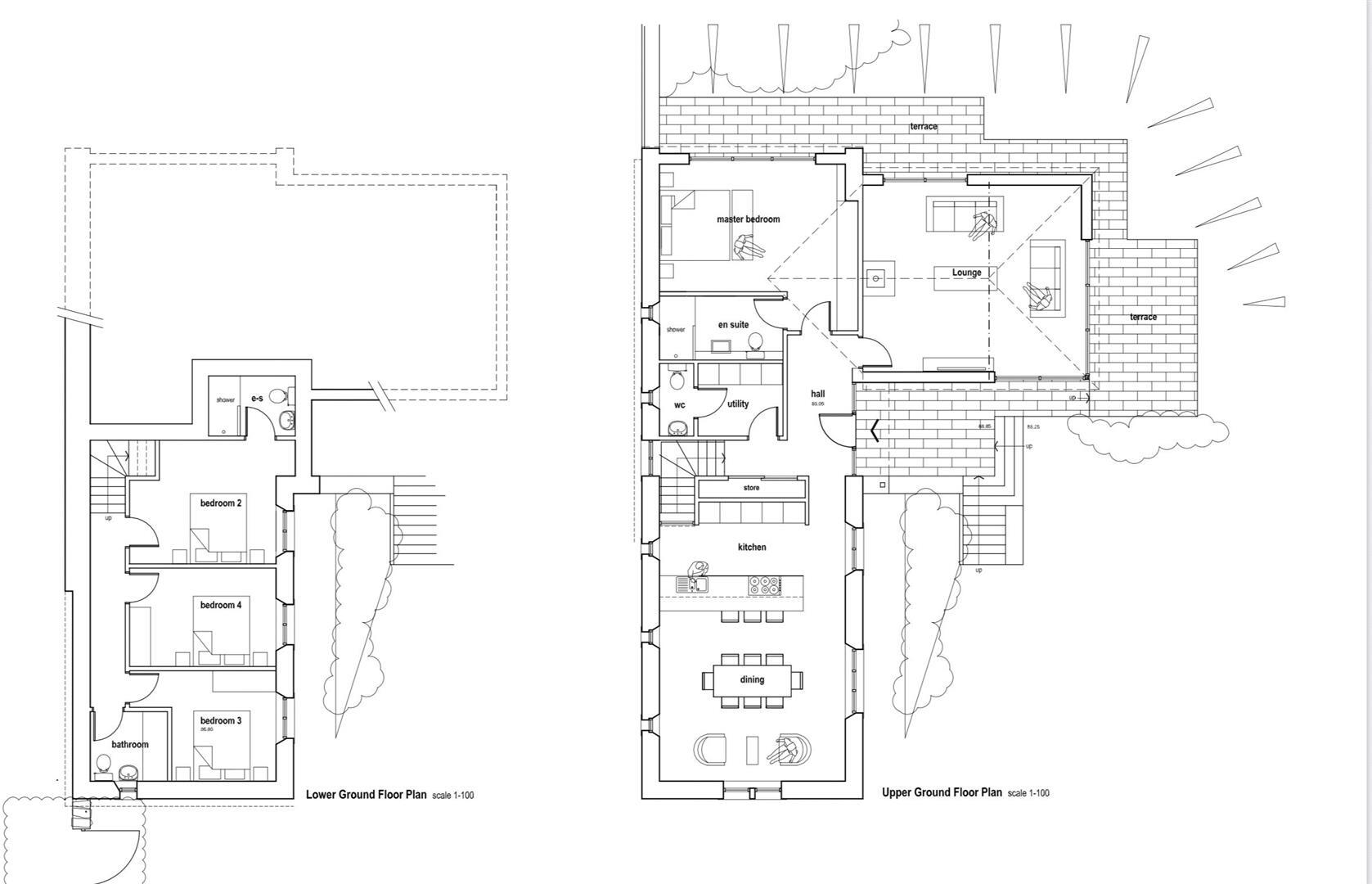
- Outline planning consent granted for a four-bedroom detached dwelling
- Reverse-style layout with bedrooms mainly on lower ground floor
- Private gated plot within exclusive three-property development
- Large plot with garden, private driveway and off-street parking
- Services available in town; buyer responsible for connecting to plot
- Images are computer-generated illustrations, not finished product
- Above-average local crime; buyers should carry out local checks
- Close to shops, bus stop, countryside walks and Hadrian's Wall
A rare freehold building plot in Brampton with outline planning consent for a four-bedroom detached home (planning ref 18/0990). The approved reverse-style design places bedrooms mainly on the lower ground floor and generous living space above, ideal for family living or a bespoke modern build that maximises views over The Sands green.
The site sits in a private, gated development of only three properties and benefits from a large garden, private driveway and off-street parking. The town centre, shops and a bus stop are all within a few minutes’ walk, with strong road links (M6 and A69) and Carlisle’s rail connections accessible for longer journeys. The location also offers countryside walks, woodland nearby and proximity to the Hadrian’s Wall UNESCO site.
Buyers should note a number of practical matters: mains gas, drainage and electricity run to the town but connecting services from the mains to the plot is the buyer’s responsibility. The images are illustrative CGI only and do not represent finished construction. The local area records above-average crime, which prospective purchasers should consider alongside other local checks.
This plot will suit someone wanting to build a contemporary family home in a quiet town-fringe setting, or an investor seeking a scarce development opportunity in a desirable Cumbrian location. Outline consent reduces early-stage risk, but completing the build will require managing service connections and detailed design approvals.
Land for sale in Townfoot Park, Brampton, Cumbria, CA8 — £60,000 • 1 bed • 1 bath • 10890 ft²
Plot for sale in Moat Side, Brampton, CA8 — £175,000 • 1 bed • 1 bath • 456 ft²
4 bedroom detached house for sale in Oak Park, Brampton, Cumbria, CA8 — £400,000 • 4 bed • 2 bath • 1259 ft²
Land for sale in Hallbankgate, Brampton, Cumbria, CA8 — £170,000 • 1 bed • 1 bath
Land for sale in Land At Park Nook, West Hall, Brampton, Cumbria, CA8 — £320,000 • 1 bed • 1 bath
Land for sale in The Green, Wreay, CA4 — £250,000 • 4 bed • 3 bath


































