Turn-key, central two-bedroom with parking and listed‑façade character close to transport and amenities..
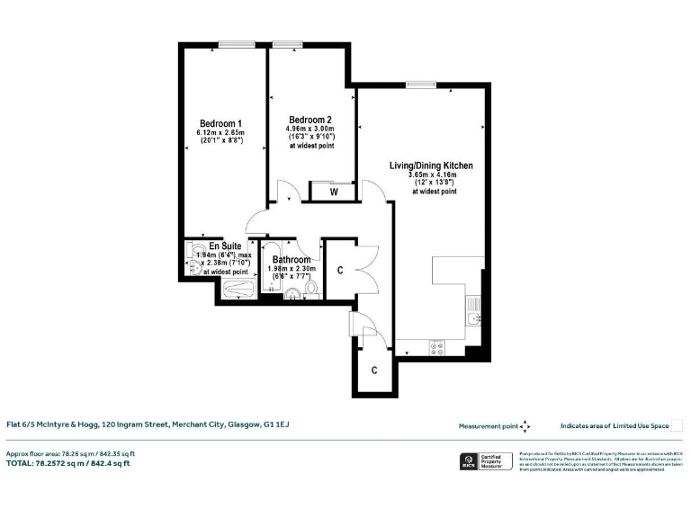
- Sixth-floor two-bedroom, two-bathroom apartment, circa 904 sq ft
- Newly renovated with engineered wood floors and modern fixtures
- South-facing open-plan living with city skyline views
- Secure allocated underground garage parking space
- B-listed status — external alterations likely restricted
- Council tax banding described as expensive
- Located in Merchant City, excellent transport and amenities
- Local area flagged as very deprived — consider resale/rental risks
A stylish two-bedroom, two-bathroom apartment on Ingram Street, positioned on the sixth floor with southerly aspects across Merchant City. The apartment was completed in 2007 and is newly renovated with quality finishes, engineered wood flooring, modern kitchen with granite worktops and integrated appliances, and double glazing. The layout is generous at about 904 sq ft and includes built-in storage, an ensuite, and secure allocated underground parking.
The building combines a preserved B-listed façade with contemporary architecture and offers lift access and secure entry. The location is one of Glasgow’s most central — minutes from shops, bars, restaurants, cultural venues, multiple rail and subway stations, and universities, making it ideal for commuters, students and city-living professionals.
Buyers should note the property has listed status which may restrict external alterations and could complicate refurbishment or permissions. Council tax is described as expensive and the local area is flagged as very deprived, which may affect long-term resale or rental outlook despite the central location.
Overall this is a turn-key apartment with strong central convenience, modern internal condition and an allocated garage space. It suits buyers seeking a low-maintenance city-base with period character and contemporary interiors, but those planning structural or external works should investigate listed-building constraints and ownership/tenure details before committing.
1 bedroom apartment for sale in Ingram Street, Merchant City, Glasgow City, G1 — £189,000 • 1 bed • 1 bath • 614 ft²
2 bedroom apartment for sale in Hutcheson Street, Merchant City, Glasgow, G1 — £249,000 • 2 bed • 2 bath • 807 ft²
2 bedroom apartment for sale in Albion Street, Merchant City, Glasgow City, G1 — £224,995 • 2 bed • 2 bath • 797 ft²
2 bedroom flat for sale in Ingram Street, Merchant City, Glasgow, G1 — £225,000 • 2 bed • 2 bath • 578 ft²
1 bedroom flat for sale in Ingram Street, Glasgow, Glasgow City, G1 — £175,000 • 1 bed • 1 bath • 511 ft²
1 bedroom flat for sale in Ingram Street, Glasgow, Glasgow City, G1 — £175,000 • 1 bed • 1 bath • 560 ft²


































































































