**Standout Features:**
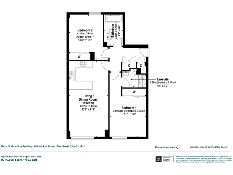
- Modern two-bedroom apartment in the Headline Building, Merchant City, Glasgow
- 736 sq ft of well-designed living space with city views from floor-to-ceiling windows
- Enjoy a stylish open-plan kitchen with integrated appliances, including a dishwasher and gas hob
- Beneficial en-suite shower room in the master bedroom
- Excellent transport links and local amenities, including restaurants and shops, just steps away
- Fast broadband and convenient on-site Sainsbury's
**Potential Considerations:**
- Located in an area classified as "very deprived"
- Higher council tax rates (Band F)
Discover urban living at its finest in this chic two-bedroom apartment, perfectly situated in the vibrant Merchant City of Glasgow. With its modern design, this fourth-floor residence offers an expansive living/dining area that seamlessly connects to a stylish kitchen, ideal for both entertaining and relaxing. Natural light pours in through large windows, creating a warm and inviting atmosphere. The property boasts good-sized bedrooms, ample storage, and luxurious touches like an en-suite in the master.
Beyond the walls of your new home, immerse yourself in a cosmopolitan lifestyle surrounded by an array of restaurants, shops, and local amenities, with convenient transport links to the rest of the city. Whether you seek a comfortable residence or a smart investment opportunity with rental potential, this apartment holds excellent value. Don’t miss out on the chance to own this gem in a bustling neighborhood that offers accessibility and style—properties like this don’t stay on the market for long!
1 bedroom apartment for sale in Albion Street, Merchant City, Glasgow City, G1 — £165,000 • 1 bed • 1 bath • 495 ft²
2 bedroom flat for sale in Albion Street, The Headline Building, Glasgow, G1 — £225,000 • 2 bed • 2 bath • 764 ft²
2 bedroom apartment for sale in Miller Street, Merchant City, Glasgow City, G1 — £235,000 • 2 bed • 2 bath • 829 ft²
2 bedroom apartment for sale in Ingram Street, Merchant City, Glasgow, G1 — £279,000 • 2 bed • 2 bath • 904 ft²
2 bedroom apartment for sale in Miller Street, Merchant City, Glasgow City, G1 — £229,000 • 2 bed • 2 bath • 840 ft²
1 bedroom apartment for sale in Ingram Street, Merchant City, Glasgow City, G1 — £189,000 • 1 bed • 1 bath • 614 ft²






















































































