**Standout Features:**
- Spacious three-bedroom detached bungalow
- Generous rear garden and detached double garage with a separate workshop
- Open-plan kitchen and dining area, ideal for family living
- Bright and airy sitting room with a bay window
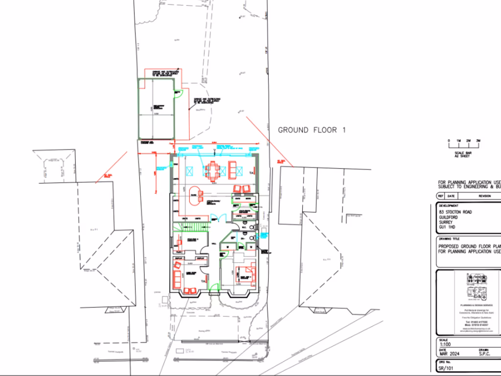
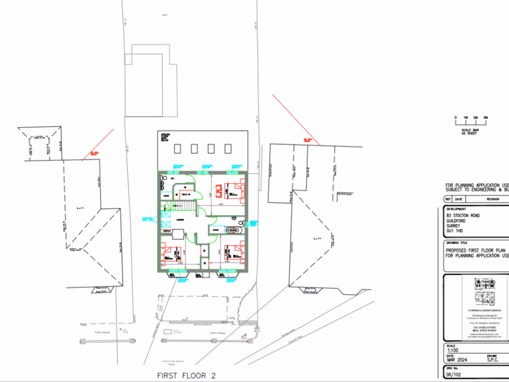
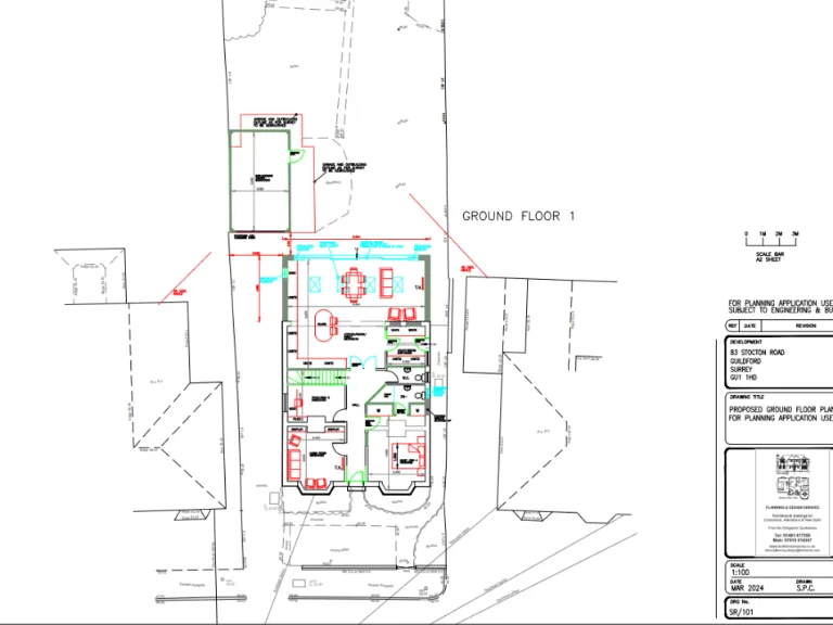
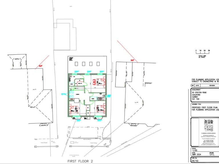
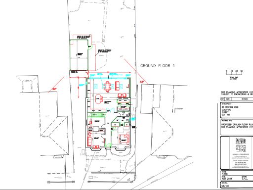
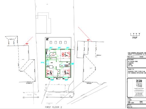
- Planning permission granted for a four-bedroom extension with an annex
- Chain-free sale for quicker transaction
- Excellent location, just a short distance from Guildford town centre and mainline station
**Summary:**
Nestled on a sought-after residential road, this charming three-bedroom detached bungalow presents an exciting opportunity for families or individuals looking to downsize. The home features a welcoming entrance hall leading to a sunlit sitting room, perfect for relaxing or entertaining. The spacious open-plan kitchen/dining area opens directly onto a vast rear garden, enhancing the property's appeal with ample indoor-outdoor living space. With three well-proportioned bedrooms, a family bathroom, and a separate cloakroom, this home comfortably caters to the needs of modern living.
Set on a large double plot, the exterior's magnificent garden is complemented by a detached double garage and workshop—ideal for hobbies or as a home office. Importantly, planning permission is already granted to extend the property into a fantastic four-bedroom home with an annex, promising great future potential.
Conveniently located just a short distance from Guildford town centre, major amenities, and various schools, this property blends comfort with accessibility. Secure your dream home chain-free and capitalize on this unique opportunity to personalize and expand the space. Don't miss out; a property with such potential in this location won’t last long!
3 bedroom bungalow for sale in Envis Way, Fairlands, Guildford, Surrey, GU3 — £475,000 • 3 bed • 1 bath • 981 ft²
3 bedroom bungalow for sale in Brocks Drive, Fairlands, Guildford, Surrey, GU3 — £500,000 • 3 bed • 1 bath • 955 ft²
4 bedroom bungalow for sale in Saffron Platt, Guildford, GU2 — £600,000 • 4 bed • 2 bath • 1097 ft²
2 bedroom bungalow for sale in Littlefield Way, Fairlands, Guildford, Surrey, GU3 — £500,000 • 2 bed • 1 bath • 888 ft²
4 bedroom bungalow for sale in Fairlands Road, Fairlands, Guildford, Surrey, GU3 — £600,000 • 4 bed • 1 bath • 1581 ft²
3 bedroom bungalow for sale in Saffron Platt, Guildford, Surrey, GU2 — £475,000 • 3 bed • 1 bath • 1179 ft²


























































