Move-in ready home with scope to extend and generous outdoor space for families.
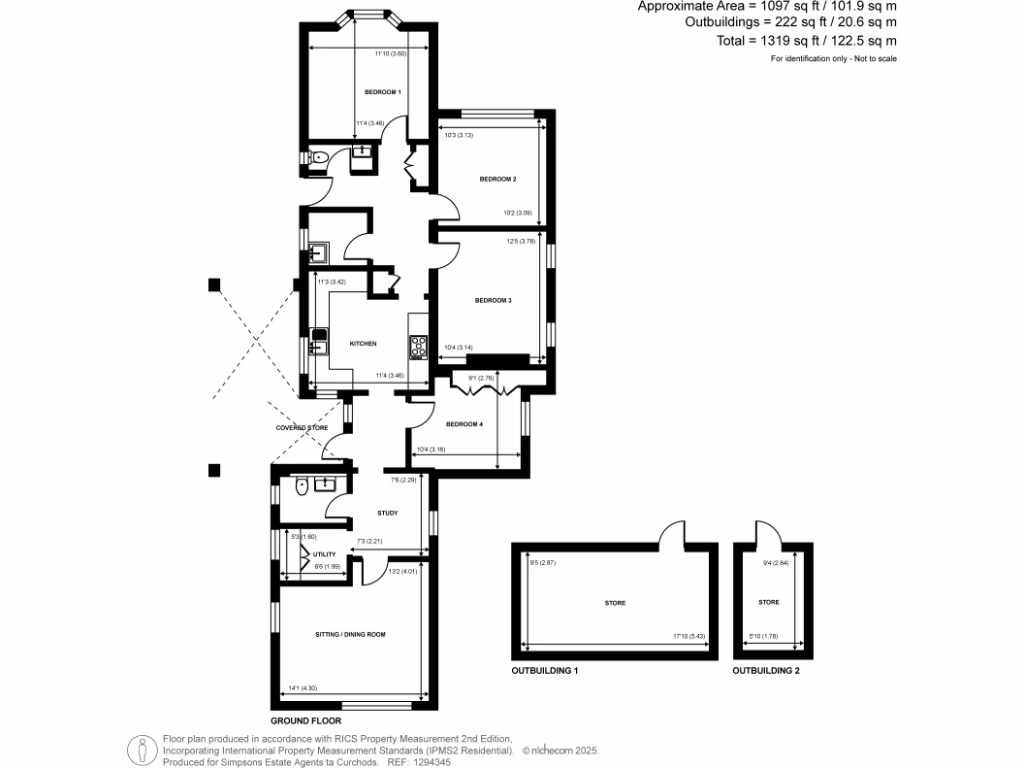
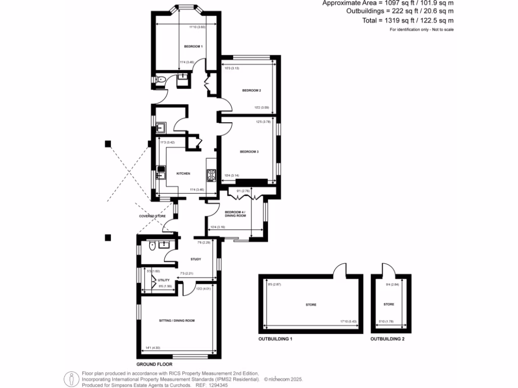
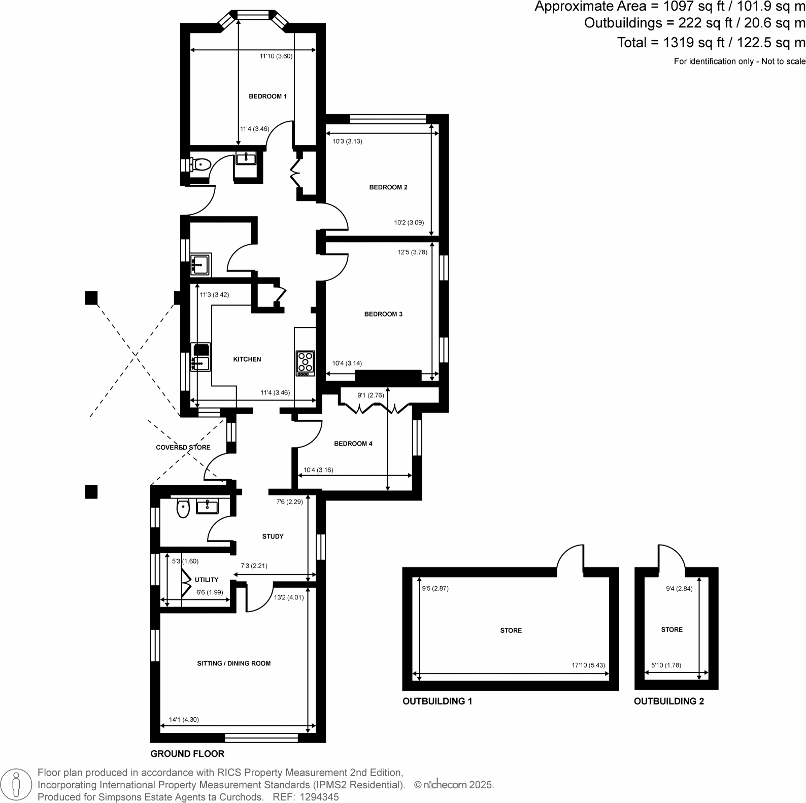
4 bedrooms with flexible layout (3/4 bedroom option)
Recently fully renovated throughout
Planning application submitted for significant extension (PP-1198135)
South-facing large rear garden; images digitally enhanced
Driveway for several cars; good off-street parking
Overall internal size is small relative to the plot
Council tax band above average
No flood risk; excellent mobile and fast broadband
This detached 1930s–1940s bungalow has been fully refurbished and offers flexible three/four-bedroom accommodation on a large plot in a quiet no-through road of Guildford. The interior is bright and modern with a generous sitting/dining room, integrated double-oven kitchen, separate utility, a wet room plus two separate WCs, and a master bedroom with an attractive bay window. Double glazing and a gas boiler with radiators are already in place.
A key advantage is the substantial south-facing rear garden and shingle driveway with parking for several cars — rare for a centrally located bungalow. There is an opportunity to increase the living space significantly: a planning application (Ref: PP-1198135) has been made proposing a major extension, offering clear potential for someone wanting to create a much larger family home (applications not yet determined).
Practical facts to note: the property’s overall internal size is relatively small compared with the plot, so extension or reconfiguration may be needed for larger households. Council tax is above average. Garden images have been digitally enhanced for illustration. Local amenities, excellent mobile signal and fast broadband, plus several well-regarded primary and secondary schools, make this a sensible choice for families wanting space and future expansion potential.
This home suits buyers seeking a move-in-refurbished bungalow with expansion potential, good connectivity and private outdoor space. Buyers who need immediate large internal space should factor in the small current footprint or planned extension works.
2 bedroom bungalow for sale in Claron, Guildford, GU2 — £490,000 • 2 bed • 1 bath • 1075 ft²
3 bedroom detached bungalow for sale in Summers Road, Godalming, Surrey, GU7 — £750,000 • 3 bed • 1 bath • 1109 ft²
4 bedroom detached house for sale in Turnoak Avenue, Woking, Surrey, GU22 — £1,000,000 • 4 bed • 2 bath • 1685 ft²
4 bedroom bungalow for sale in Faris Lane, Woodham, Surrey, KT15 — £1,200,000 • 4 bed • 3 bath • 2295 ft²
3 bedroom detached bungalow for sale in Stocton Road, Guildford, GU1 — £775,000 • 3 bed • 1 bath • 1295 ft²
3 bedroom detached bungalow for sale in Mead Way, Burpham, GU4 — £899,950 • 3 bed • 2 bath • 1448 ft²










































































