Spacious reception, private garden and no onward chain, ideal for family buyers.
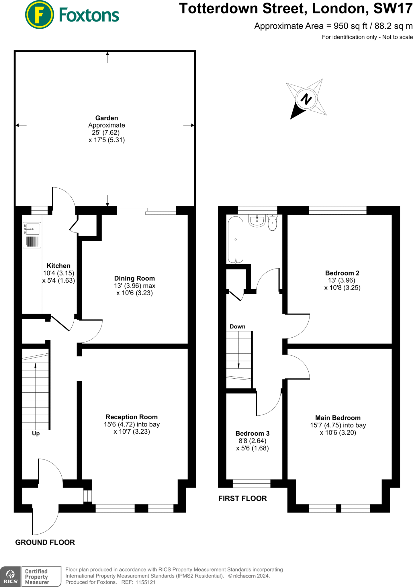
Freehold mid-terrace three-bedroom house, 950 sqft
This mid-terrace, three-bedroom house in SW17 offers a practical family layout across two floors, with a private rear garden for relaxing and entertaining. The property features a generous reception room with a separate dining room and a modern-fit kitchen with integrated appliances, making everyday living straightforward from day one. Offered with no onward chain and freehold tenure, it suits buyers wanting a quick, uncomplicated move.
Built in the 1930–49 period with solid brick walls, the house has genuine scope to modernise. The accommodation includes two double bedrooms and a single bedroom, served by one family bathroom. The home presents some dated areas and evidence of general wear; buyers should expect cosmetic upgrades and likely remedial work such as roof attention noted in external descriptions and the absence of assumed wall insulation.
Location is a strong asset: Tooting High Street, local shops, cafés and restaurants are close by, and Tooting Broadway station provides direct Northern Line access. A mix of well-rated schools nearby, including Ofsted outstanding options, makes this a sensible choice for families. Fast broadband and excellent mobile signal support home working and connectivity.
For a purchaser prepared to refurbish, the house offers clear potential to add value and tailor the layout and finish to modern family needs. Be aware of the single bathroom and small plot size when comparing to larger suburban alternatives; a survey is recommended to confirm the condition of roof, services and wall insulation assumptions.
3 bedroom semi-detached house for sale in Herlwyn Gardens, London, SW17 — £775,000 • 3 bed • 1 bath • 1033 ft²
3 bedroom terraced house for sale in Gatton Road, London, SW17 — £735,000 • 3 bed • 1 bath • 959 ft²
3 bedroom terraced house for sale in Derinton Road, Tooting, SW17 — £775,000 • 3 bed • 2 bath • 833 ft²
3 bedroom terraced house for sale in Park Avenue, Mitcham, CR4 — £550,000 • 3 bed • 1 bath • 941 ft²
3 bedroom terraced house for sale in Links Road, Tooting, London, SW17 — £700,000 • 3 bed • 1 bath • 950 ft²
3 bedroom terraced house for sale in Derinton Road, Tooting Bec, London, SW17 — £785,000 • 3 bed • 1 bath • 854 ft²






























































