SN26 8AQ - 4 bedroom detached house for sale in 84, Blunsdon Hill, SN2…

View on Property Piper

4 bedroom detached house for sale in 84, Blunsdon Hill, SN26 8AQ, SN26

Summary - 84, Blunsdon Hill, SN26 8AQ SN26 8AQ

4 bed 3 bath Detached

**Standout Features:**
- Impressive large detached new build (2,090 sq ft)
- Four spacious bedrooms, including a luxurious top-floor master suite with en suite
- Separate study and utility room
- Contemporary open-plan living area with bifold doors leading to the garden
- Single garage and allocated parking
- Award-winning developer in a tranquil rural setting

This stunning modern home in Blunsdon is a wonderful opportunity for families seeking a blend of comfort and elegance. With four generous bedrooms and a separate dedicated study, there's ample space for both relaxation and productivity. The heart of the home features a stylish open-plan kitchen and dining area, perfectly designed for entertaining, while large bifold doors open to a private garden—ideal for outdoor gatherings or play.

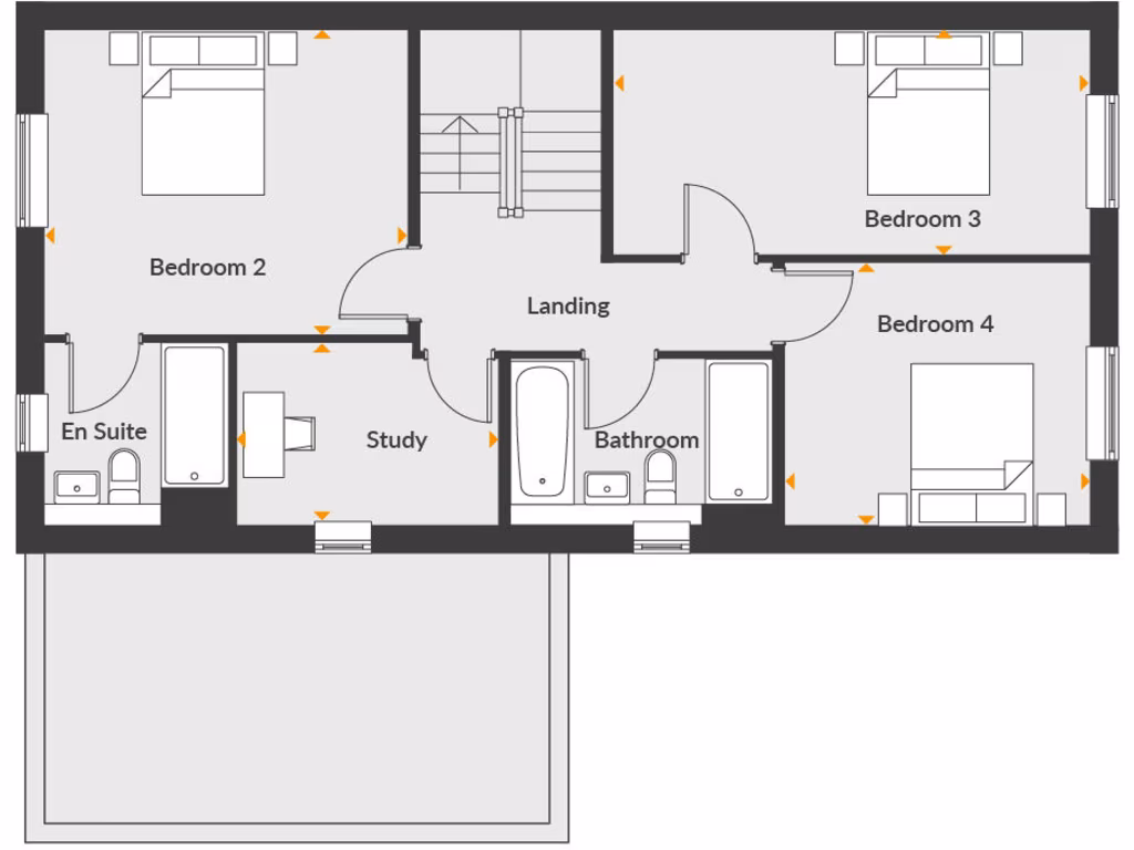
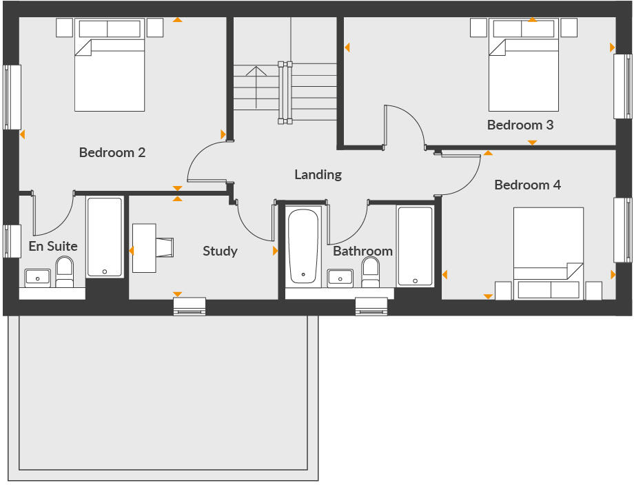
The top-floor main suite serves as a luxurious retreat, boasting a spacious dressing room and a beautifully crafted en suite bathroom. The first floor offers two additional well-sized bedrooms, one with an en suite, plus a stylish family bathroom. Outside, the large garden provides a peaceful oasis, complemented by a single garage for convenient storage.

Nestled within an exclusive development of 88 homes, this property is surrounded by lush greenery and scenic walking routes. Swindon Town is just a 15-minute drive away, offering urban amenities while maintaining a serene rural atmosphere. With plenty of potential for future renovations and modifications, this home is a perfect choice for those looking to invest in their family's future—a rare find in today's market! Don't miss out on making it yours!

Property Details

Image Descriptions

Floorplan Description

Rooms

Textual Property Features

Detected Visual Features

Nearby Schools

Nearest Bars And Restaurants

,,,,}

Nearest General Shops

,,}

Nearest Grocery shops

,,}

Nearest Supermarkets

,,}

Nearest Religious buildings

,,}

Nearest Medical buildings

,,,}

Nearest Leisure Facilities

,,,,}

Nearest Tourist attractions

,,}

Nearest Train stations

,,,,}

Nearest Bus stations and stops

,,,,}

Nearest Hotels

,,}

Tags

Local Market Stats

Similar Properties

Meta

High Res Images

Compatible Images

Low res Images

Thumbnails

Raw Images

High Res Floorplan Images

Compatible Floorplan Images

Low res Floorplan Images

FloorplanImages Thumbnail

Raw Floorplan Images