SN26 8AQ - 4 bed spacious threestorey home in North Swindon, SN26 8AQ

View on Property Piper

4 bedroom detached house for sale in 85, Blunsdon Hill SN26 8AQ, SN26

Summary - 85, Blunsdon Hill SN26 8AQ SN26 8AQ

4 bed 3 bath Detached

Contemporary family living in a peaceful, well-connected rural setting.
Top-floor principal suite with dressing room and private ensuite
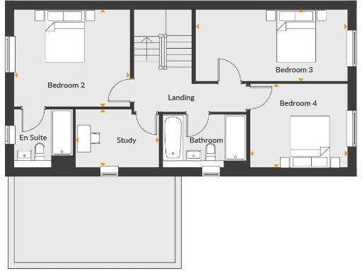
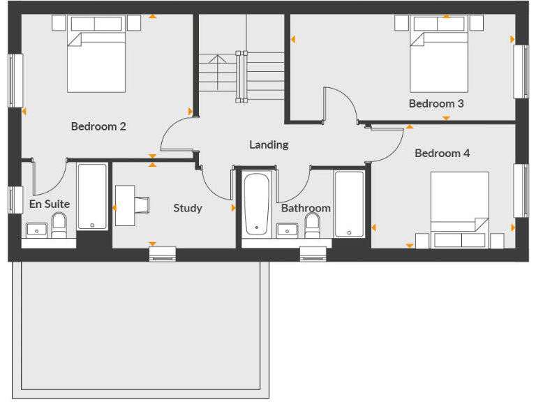
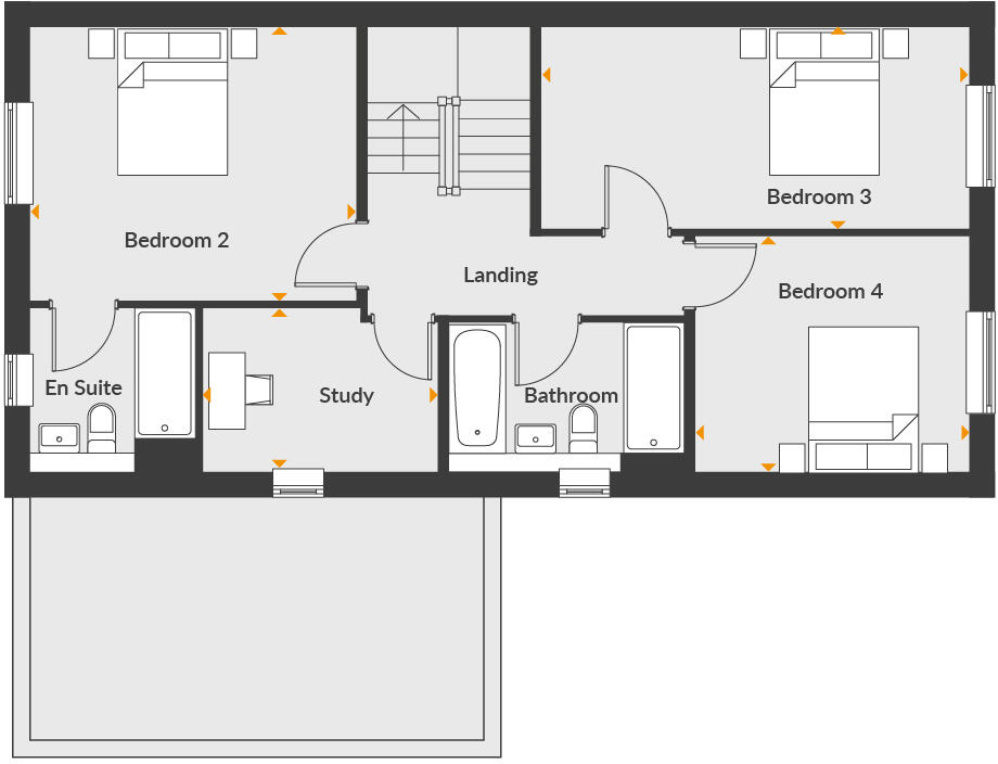
This new-build, four-bedroom detached home is arranged over three floors and designed for modern family life. The top-floor principal suite includes a dressing room and private ensuite, while three double bedrooms on the first floor and a separate study provide flexible space for family, guests and home working. The ground floor features an open-plan kitchen/dining area with bifold doors, a separate utility room and a comfortable living room.

Set in a rural development with ample greenery and scenic local walks, the house sits on a very large plot with a private garden, single garage and allocated parking. High-spec finishes are promoted throughout and the property benefits from fast broadband and excellent mobile reception — useful for remote working and streaming.

Buyers should note images are of the show home and for illustrative purposes only. This is a new build with reservation terms and a limited-time deposit offer that carries conditions and deadlines; confirm completion dates, warranties and any management or estate charges before committing. Council tax band and some local details remain unspecified.

Property Details

Image Descriptions

Floorplan Description

Rooms

Textual Property Features

Target Audience

AI Tags

Detected Visual Features

Nearby Schools

Nearest Bars And Restaurants

,,,,}

Nearest General Shops

,,}

Nearest Grocery shops

,,}

Nearest Supermarkets

,,}

Nearest Religious buildings

,,}

Nearest Medical buildings

,,,}

Nearest Leisure Facilities

,,,,}

Nearest Tourist attractions

,,}

Nearest Train stations

,,,,}

Nearest Bus stations and stops

,,,,}

Nearest Hotels

,,}

Tags

Local Market Stats

Similar Properties

Meta

High Res Images

Compatible Images

Low res Images

Thumbnails

Raw Images

High Res Floorplan Images

Compatible Floorplan Images

Low res Floorplan Images

FloorplanImages Thumbnail

Raw Floorplan Images