Valley views and private landscaped rear garden
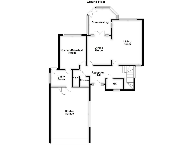
Gated L-shaped driveway with integral double garage
Four bedrooms; two with modern en suites
Large plot ideal for family living and entertaining
EPC rated D (65) — energy upgrades may be needed
Medium flood risk for the area — check insurance costs
Slow broadband speeds — not ideal for heavy home-working
Council Tax band G — relatively expensive running costs
Set on a large plot in semi-rural Notton, this substantial four-bedroom detached house is arranged over two floors and offers generous family living with valley views. The layout includes a reception hall, living and dining rooms, conservatory, kitchen/breakfast room, utility and integral double garage — practical spaces for everyday family life and entertaining.
Two of the four bedrooms have modern en suites and there is a luxury four-piece family bathroom, providing flexible sleeping arrangements and good washroom provision for a busy household. The gated L-shaped driveway provides secure parking and the attractive landscaped rear garden with Indian stone patio and open-field aspect gives a private outdoor setting for children and pets.
Practical points to note: the house was built in the late 1970s/early 1980s and has partial cavity insulation assumed; the EPC is rated D (65). There is a medium flood risk for the area and broadband speeds are reported slow — factors to consider for running a home office or high-bandwidth needs. Council Tax band G also indicates higher running costs.
Overall this is a well-presented family home in an affluent, commuter-friendly village. It will suit buyers seeking generous internal space, outdoor privacy and strong road links to Wakefield, Leeds and the M1, while those prioritising energy efficiency, high-speed broadband or low council tax should factor in potential upgrades.
4 bedroom detached house for sale in George Lane, Notton, Wakefield, WF4 — £895,000 • 4 bed • 2 bath • 3258 ft²
2 bedroom detached house for sale in George Lane, Notton, Wakefield, West Yorkshire, WF4 — £550,000 • 2 bed • 2 bath • 1256 ft²
3 bedroom semi-detached house for sale in The Oval, Notton, Wakefield, WF4 — £180,000 • 3 bed • 1 bath • 937 ft²
4 bedroom detached house for sale in Ingswell Drive, Notton, Wakefield, WF4 — £425,000 • 4 bed • 1 bath • 1228 ft²
4 bedroom detached house for sale in Ingswell Drive, Notton, Wakefield, WF4 2NF, WF4 — £525,000 • 4 bed • 1 bath • 822 ft²
5 bedroom detached house for sale in Applehaigh Lane, Notton, Wakefield, WF4 — £700,000 • 5 bed • 4 bath • 4036 ft²


















































































































