Two-bedroom semi with woodland outlook, good plot and modernising potential..
Set back from main road with woodland outlook to rear
Good-sized kitchen and bright lounge with large front window
Two double bedrooms plus box room/home office potential
Freehold, gas central heating, and double glazing throughout
Garden front and rear; scope for garage or parking conversion
Approx 872 sq ft — average-sized rooms throughout
Fast broadband and excellent mobile signal for modern working
Wider area classified as deprived — may affect resale perception
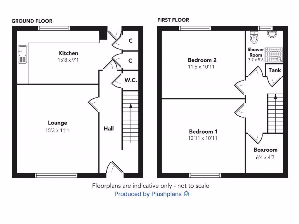
Set back from the main road on a good-sized plot, 76 Donaldswood Road is a two-bedroom semi-detached villa with a peaceful woodland outlook to the rear. The house offers bright living spaces, a generously sized kitchen and a lounge with a large front window, plus gardens front and back and potential for off-street parking or garage conversion. Gas central heating and double glazing are already in place.
This home suits first-time buyers or couples who want a ready-to-personalise property with scope to modernise key finishes and add value. The layout includes two double bedrooms, a useful box room ideal for a home office, and a contemporary shower room with wet-wall panelling for low maintenance.
Practical benefits include freehold tenure, no flood risk, fast broadband and excellent mobile signal. The plot and woodland backdrop offer privacy and outside space for families or gardeners. The property is modest in total floor area (approx. 872 sq ft), so buyers should expect average room sizes.
Buyers should note the wider area is classified as deprived, which can affect resale perception and local services. The house presents clear potential but will reward those willing to modernise and personalise finishes to current tastes.
4 bedroom detached house for sale in Donaldswood Park, Paisley, PA2 — £270,000 • 4 bed • 2 bath • 1227 ft²
3 bedroom semi-detached house for sale in 24 Ben More Drive, Paisley, PA2 7NS, PA2 — £210,000 • 3 bed • 1 bath • 936 ft²
2 bedroom terraced house for sale in Forth Avenue, Paisley, Renfrewshire, PA2 — £82,500 • 2 bed • 1 bath • 932 ft²
2 bedroom semi-detached house for sale in Crookhill Gardens, Lochwinnoch, PA12 — £170,000 • 2 bed • 1 bath • 857 ft²
1 bedroom terraced bungalow for sale in 116 Donaldswood Road, Paisley, PA2 — £100,000 • 1 bed • 1 bath • 519 ft²
2 bedroom villa for sale in 5 Glencally Avenue, Paisley, PA2 7PQ, PA2 — £110,000 • 2 bed • 1 bath • 807 ft²


























































