Spacious plot and driveway parking ideal for growing families.
Traditional 1930s semi-detached with bay window
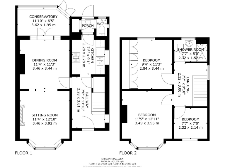
A solid 1930s semi-detached family home with traditional bay windows, good natural light and a private driveway that fits multiple vehicles. The house offers an open-plan living and dining area, an adjoining conservatory and a large rear garden that creates clear scope for outdoor living or additional outbuildings.
Practical features include triple glazing, mains gas central heating with boiler and radiators, cavity wall insulation and freehold tenure — all useful for running costs and comfort. The property is well placed for North Hailsham amenities, schools and bus routes, making daily errands and commutes straightforward.
This home suits families seeking space and long-term potential: the huge rear garden could accommodate substantial garages or outbuildings (subject to planning). Note there is a single shower room only, and room sizes are generally average, so buyers wanting larger, contemporary layouts should budget for remodelling.
Local schooling is mixed: nearby primary schools are rated Good, but the nearest secondary (Hailsham Community College) currently has an Inadequate Ofsted rating. Overall, this is a characterful, well-built period house with clear potential for improvement and extension for buyers prepared to invest.
3 bedroom semi-detached house for sale in Mill Road, Hailsham, BN27 — £350,000 • 3 bed • 1 bath • 922 ft²
3 bedroom semi-detached house for sale in Battle Crescent, Hailsham, BN27 — £325,000 • 3 bed • 1 bath • 1725 ft²
3 bedroom detached house for sale in Battle Road, Hailsham, East Sussex, BN27 — £360,000 • 3 bed • 1 bath • 1229 ft²
3 bedroom terraced house for sale in Swan Road, Hailsham, BN27 — £259,950 • 3 bed • 1 bath • 807 ft²
3 bedroom semi-detached house for sale in Hawksley Crescent, Hailsham, BN27 — £365,000 • 3 bed • 2 bath • 1300 ft²
3 bedroom end of terrace house for sale in Blossom Walk, Hailsham, BN27 — £325,000 • 3 bed • 1 bath • 925 ft²


































































































