Set back from the road with wide driveway and private rear garden for family living.
Three double bedrooms with a large master spanning front to back
This three-bedroom, detached home on Battle Road offers space and scope for a growing family who want to add value. Set back from the road with a wide driveway for multiple vehicles and a private, non-overlooked rear garden, it provides practical outdoor space and easy parking — rare in town locations.
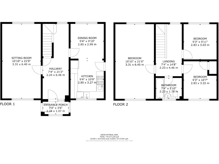
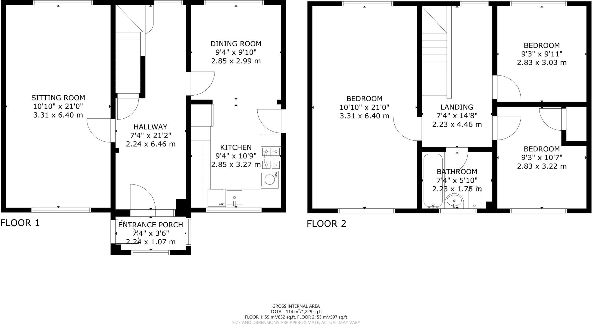
Inside the house is traditional in layout with a long hallway, a 21' living room that runs front-to-back, and a large open-plan kitchen and dining area linked by an arch. The generous master bedroom also spans the length of the property; two further bedrooms and a single family bathroom complete the first floor. The room proportions and flow suit everyday family life and entertaining.
The property requires updating throughout and is best suited to buyers prepared for a renovation project. Original fittings and dated finishes are present, particularly in the kitchen and bathroom, and the solid brick construction appears to lack modern cavity insulation. The heating is mains gas via boiler and radiators and windows are double glazed, though install dates are unknown.
Positioned in North Hailsham on handy bus routes with a large convenience store nearby, the location suits parents working locally or commuting. Freehold tenure, a decent plot size and the potential to modernise give clear scope to improve comfort and resale value. Council tax is above average — factor this into ongoing costs.
3 bedroom semi-detached house for sale in Hawks Road, Hailsham, East Sussex, BN27 — £325,000 • 3 bed • 1 bath • 1008 ft²
3 bedroom semi-detached house for sale in Mill Road, Hailsham, BN27 — £350,000 • 3 bed • 1 bath • 922 ft²
3 bedroom semi-detached house for sale in Battle Crescent, Hailsham, BN27 — £325,000 • 3 bed • 1 bath • 1725 ft²
4 bedroom detached house for sale in Viburnum Way, Hailsham, BN27 — £425,000 • 4 bed • 3 bath • 1222 ft²
4 bedroom detached house for sale in Hawks Road, Hailsham, East Sussex, BN27 — £499,950 • 4 bed • 1 bath • 2248 ft²
3 bedroom end of terrace house for sale in Blossom Walk, Hailsham, BN27 — £325,000 • 3 bed • 1 bath • 925 ft²


























































