Spacious commercial canvas near transport links, ideal for investor or owner-operator.
Prominent roadside frontage with large display windows
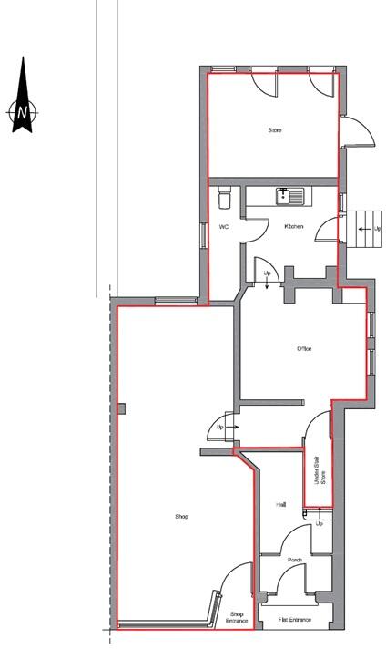
This large ground-floor shop in Colwyn Bay’s West End offers clear investment potential thanks to its prominent roadside frontage and generous 1,346 sqft footprint. The Victorian façade, high ceilings and large display windows provide a strong canvas for retail, café or conversion into alternative commercial uses.
The unit is generationally owned and deceptively spacious internally, with easy access to Colwyn Bay train station and the A55—good passing trade potential for the right operator. On-site garage/storage adds practical value.
The property requires refurbishment and modernisation; the building dates from c.1900–1929 with solid brick walls and likely minimal insulation. Sold at online unconditional auction: buyer fees, an immediate deposit on exchange and other disbursements apply. Tenure is unspecified — bidders must check the legal pack and carry out due diligence.
This lot will suit an investor or small business owner prepared to invest in upgrading the space to capture local footfall. Note the location falls within a very deprived area statistically, which affects local spending power but can also present opportunities for value-led operators.
Shop for sale in Sea View Road, Colwyn Bay, Conwy, LL29 — £150,000 • 1 bed • 1 bath • 1873 ft²
Property for sale in 7 Conway Road, Colwyn Bay, Conwy LL29 7AD, LL29 — £185,000 • 1 bed • 1 bath
4 bedroom terraced house for sale in 46 Gadlas Road, Llysfaen, Colwyn Bay, Conwy, LL29 8TB, LL29 — £135,000 • 4 bed • 1 bath
Shop for sale in Princes Drive, Colwyn Bay, Conwy, LL29 — £70,000 • 1 bed • 1 bath • 1153 ft²
Mixed use property for sale in Conway Road, Colwyn Bay, Conwy, LL29 — £165,000 • 1 bed • 1 bath • 2680 ft²
Commercial property for sale in Oxford Road, Llandudno, LL30 — £300,000 • 1 bed • 5 bath • 4715 ft²


























