Well-specified detached house with large garden and low-carbon systems.
Designer fitted kitchen with integrated high-spec appliances
Air source heat pump and ground-floor underfloor heating
Electric vehicle charge point and integral garage
Very large rear garden — strong scope for landscaping or extension
3 bedrooms, 2 bathrooms; principal bedroom with en-suite
Freehold with 10-year NHBC new-build warranty
Average broadband speeds in the area
Comfortable room sizes, bedrooms are modest rather than large
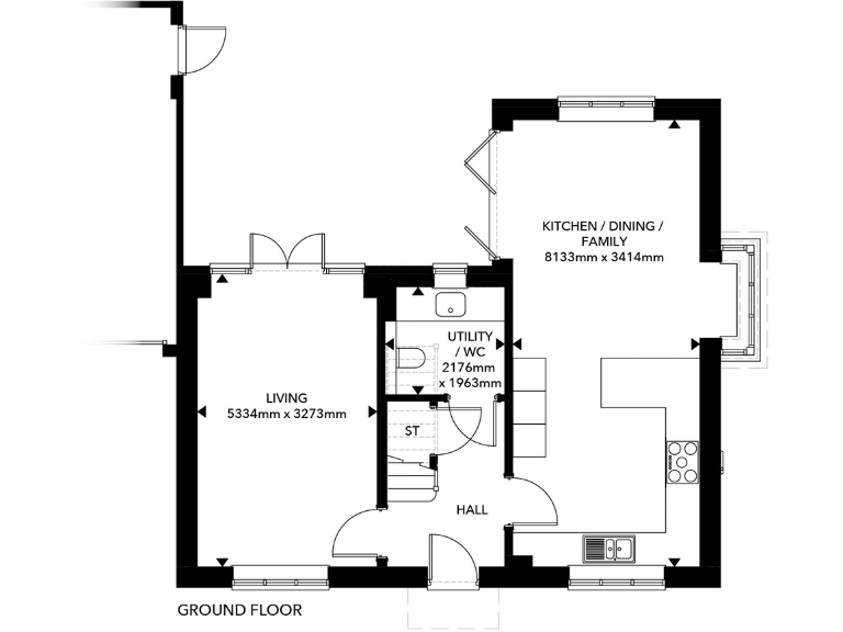
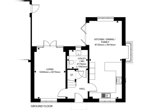
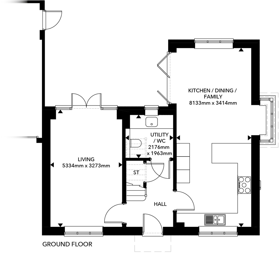
Set on a generous plot in the village of Lower Beeding, this three-bedroom detached new build offers contemporary family living with practical low-carbon features. The heart of the home is a large open-plan kitchen/dining/family area finished with designer fittings and integrated appliances, plus a separate lounge with French doors onto a sizeable rear garden. An integral garage and off-road parking add storage and convenience.
Energy-efficient installations include an air source heat pump, ground-floor underfloor heating and an electric vehicle charge point, helping to lower running costs and emissions. The property comes with a 10-year NHBC build warranty and is sold freehold, providing reassurance for buyers seeking a modern, low-maintenance home.
Upstairs there are three comfortable bedrooms, including a principal bedroom with en-suite, and a contemporary family bathroom with thermostatic shower and heated towel rail. The overall footprint is around 1,201 sq ft — good for a modern detached home but with bedrooms that are modest in size compared with some older family homes.
Practical points to note: broadband speeds in the area are average, and the property sits within a peaceful, village setting which offers countryside living rather than immediate urban amenities. For a family seeking a quiet, well-specified home with outside space and modern running-cost advantages, this house presents strong appeal.
4 bedroom detached house for sale in The Gallops, Sandygate Lane, Lower Beeding, Horsham, West Sussex, RH13 — £730,000 • 4 bed • 2 bath • 668 ft²
4 bedroom detached house for sale in Meadow View, Coolhurst Close, RH13 — £1,000,000 • 4 bed • 3 bath • 2035 ft²
4 bedroom detached house for sale in Spring Bank, Haywards Heath, RH16 — £900,000 • 4 bed • 3 bath • 1883 ft²
5 bedroom detached house for sale in Nuthurst Village, RH13 — £1,300,000 • 5 bed • 4 bath • 2432 ft²
3 bedroom semi-detached house for sale in Meadow View, Monks Gate, RH13 — £750,000 • 3 bed • 2 bath • 1489 ft²
4 bedroom detached house for sale in Sumners Fields, Horsham, RH13 — £725,000 • 4 bed • 2 bath • 1343 ft²


































































