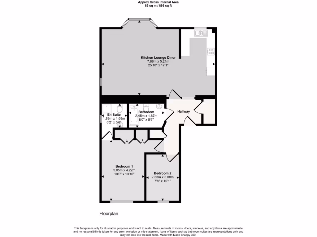
Spacious two-bed with ensuite and allocated parking near local amenities.
Large open-plan kitchen/diner/lounge, ideal for social living
A spacious ground-floor two-bedroom flat offering 893 sq ft of contemporary open-plan living. The large kitchen/diner/lounge is bright and versatile, ideal for first-time buyers wanting a modern, low-maintenance home with generous living space.
The main bedroom includes fitted wardrobes and an ensuite; a separate modern bathroom has a Crittall-style shower screen. Practical benefits include double glazing, gas central heating, one allocated off-street parking space and no flooding risk.
Important practical facts: the property is leasehold with 103 years remaining, an average service charge of £1,920 pa and annual ground rent of £150. Broadband in the area is very slow, and a small number of nearby schools are rated ‘requires improvement’, though several primary and secondary schools are rated Good.
Positioned close to shops, buses and local amenities with easy access to Manchester city, this flat suits first-time buyers or professionals seeking a ready-to-move-in home with some running costs to factor into the budget.
2 bedroom apartment for sale in 142 Dean Road, Cadishead M44 5AJ, M44 — £139,995 • 2 bed • 1 bath • 499 ft²
2 bedroom flat for sale in Apple Blossom Grove, Cadishead, M44 — £129,995 • 2 bed • 1 bath • 490 ft²
2 bedroom flat for sale in 15 Quay House, Irlam M44 6RU, M44 — £139,995 • 2 bed • 1 bath • 576 ft²
2 bedroom apartment for sale in Forebay Drive, Irlam, Manchester, M44 — £110,000 • 2 bed • 1 bath • 552 ft²
2 bedroom flat for sale in Manor Court, Urmston Lane, M32 9DE, M32 — £155,000 • 2 bed • 1 bath • 452 ft²
2 bedroom flat for sale in Worsley Road, MANCHESTER, Lancashire, M27 — £180,000 • 2 bed • 1 bath • 677 ft²


















































