Affordable central location with a very long lease and parking.
Ground-floor two-bed flat with open-plan kitchen-diner
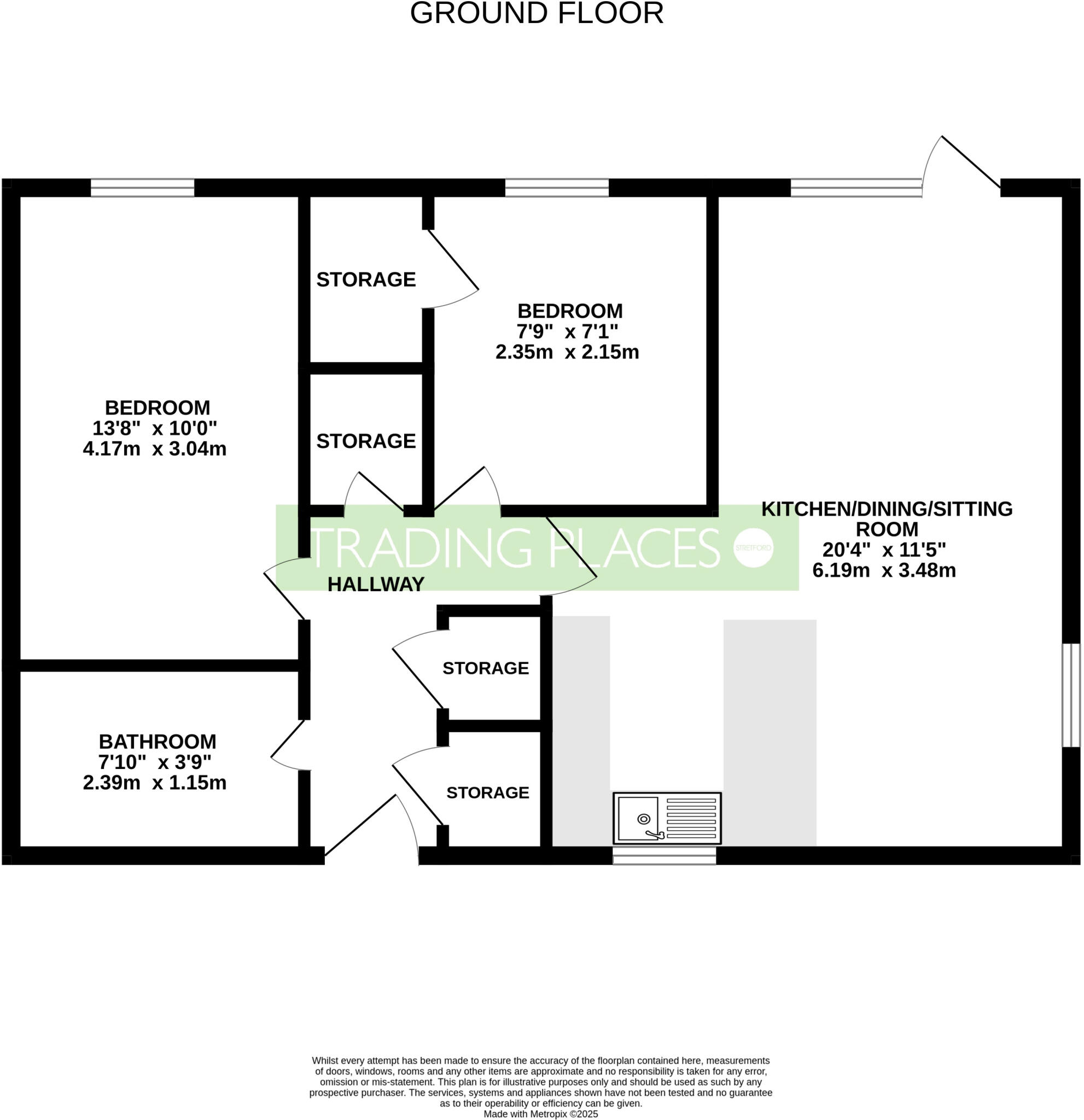
A compact two-bedroom ground-floor flat in Stretford, arranged around an open-plan kitchen-diner and living area. The layout makes efficient use of 452 sq ft, with one double and one single bedroom suitable for a small family, couple, or first-time buyer seeking central convenience. The long lease (954 years) and off-street parking are practical ownership advantages rarely found at this price point.
The apartment sits in a mid-20th-century brick block with a communal garden and secure entry. Transport links, local shops and amenities are within easy reach, and excellent mobile signal plus fast broadband support home working. Nearby schools include an Outstanding-rated primary and several good secondaries, which will matter to buyers with young children.
The property is presented in dated condition and will benefit from cosmetic updating: low-to-standard ceilings, older carpets and fixtures suggest renovation potential rather than move-in perfection. The overall size is small, so buyers should expect compact rooms and storage limitations. The surrounding area is classified as deprived, which affects longer-term resale considerations and local services.
No recent flood history is recorded and the building is brick-and-block construction on mains services. This flat suits buyers who prioritise location, a long lease and affordability and who are prepared to invest modestly to modernise the interior.
2 bedroom flat for sale in Manor Court, Urmston Lane, M32 9DE, M32 — £155,000 • 2 bed • 1 bath • 453 ft²
2 bedroom flat for sale in Nansen Close, Stretford, M32 — £180,000 • 2 bed • 1 bath
1 bedroom apartment for sale in Manor Court, Urmston Lane, M32 9DE, M32 — £140,000 • 1 bed • 1 bath • 432 ft²
2 bedroom apartment for sale in New Belvedere Close, Stretford, M32 0EG, M32 — £160,000 • 2 bed • 1 bath
2 bedroom apartment for sale in Barton Road, Stretford, M32 — £195,000 • 2 bed • 1 bath • 499 ft²
2 bedroom flat for sale in Lawnhurst Avenue, Manchester, Greater Manchester, M23 — £175,000 • 2 bed • 1 bath • 700 ft²


































































