Characterful two-bedroom home ideal for commuters and small families.
Short walk to Radlett Mainline Station and village shops
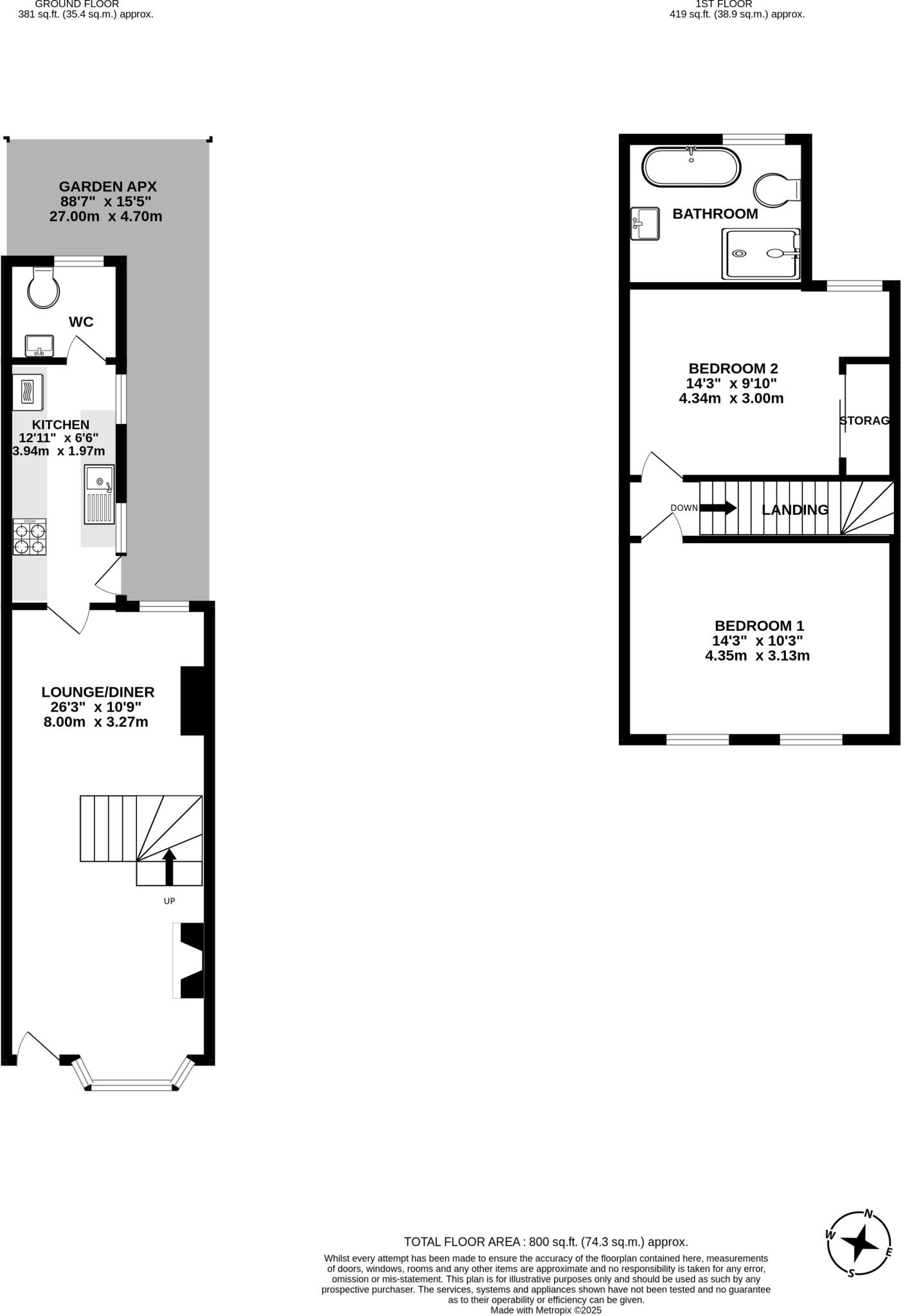
This well-proportioned Victorian terraced cottage sits a short walk from Radlett’s Mainline Station and the village high street, making it ideal for commuting professionals and small families. The ground floor’s 26ft open-plan lounge and dining area feels bright and flexible, with a cosy TV snug at the far end and a modern fitted kitchen that opens onto a sunny, low-maintenance rear garden with a patio and lawn.
Upstairs offers two double bedrooms and a family bathroom with both a bath and separate shower — practical for daily family routines or guests. The property is freehold and about 800 sq ft, with standard ceiling heights and period character including a bay window and traditional fireplace.
Buyers should note some original construction features: the terrace is solid brick and assumed to have no cavity wall insulation, and the double glazing was installed before 2002, so heating efficiency could be improved. The boiler and radiators run on mains gas and the area benefits from fast broadband and excellent mobile signal.
Overall this cottage is a comfortable, characterful home in an affluent, low-crime area with strong local schools nearby. It will suit buyers who want a ready-to-live-in house with scope to improve energy efficiency and personalise finishes over time.
2 bedroom house for sale in Station Road, Radlett, WD7 — £550,000 • 2 bed • 1 bath • 889 ft²
3 bedroom terraced house for sale in Station Road, Radlett, Hertfordshire, WD7 — £650,000 • 3 bed • 2 bath • 829 ft²
3 bedroom cottage for sale in Farm Cottage, Radlett, WD7 — £980,000 • 3 bed • 2 bath • 1141 ft²
3 bedroom semi-detached house for sale in Aldenham Road, Radlett, Hertfordshire, WD7 — £800,000 • 3 bed • 1 bath • 1151 ft²
5 bedroom semi-detached house for sale in Christchurch Crescent, Radlett, WD7 — £1,125,000 • 5 bed • 2 bath • 1875 ft²
4 bedroom end of terrace house for sale in Watling Street, Radlett, Hertfordshire, WD7 — £800,000 • 4 bed • 2 bath • 1500 ft²


































































