Spacious family layout near stations and top local schools.
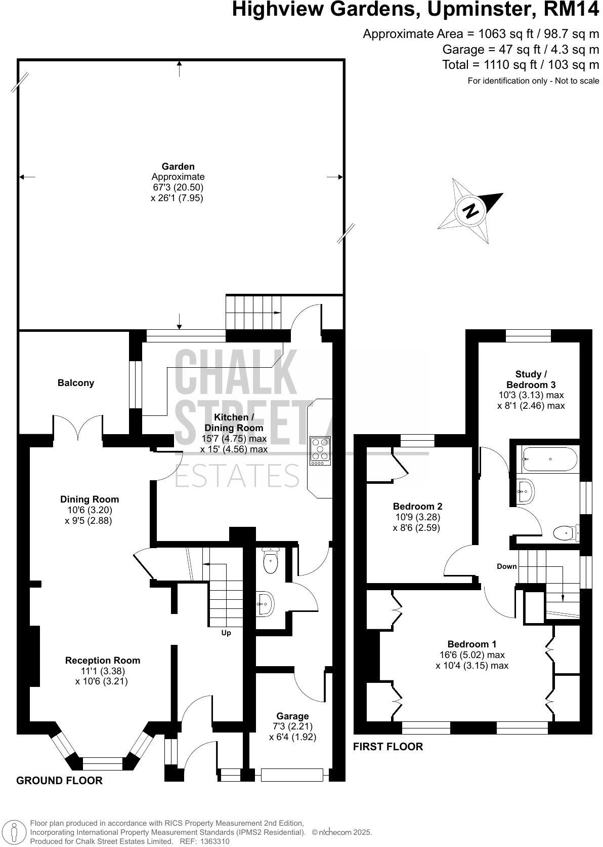
Three bedrooms, spacious through lounge and open-plan kitchen/dining
67' west-facing rear garden, good afternoon/evening sun
Off-street parking plus partially retained garage storage (converted WC)
About 1,063 sq ft; well presented but scope to modernise
Solid brick walls (assumed no insulation) and older double glazing
Gas central heating via boiler and radiators; mains services
Close to Upminster and Upminster Bridge stations (0.4–0.6 miles)
Council tax above average; local crime levels reported high
This well-presented three-bedroom semi-detached home offers comfortable, adaptable family living within easy walking distance of Upminster and Upminster Bridge stations. The through lounge with bay window and a generous open-plan kitchen/dining room provide bright, flexible living space, opening onto a balcony and a west-facing garden that receives afternoon and evening sun.
Practical features include off-street parking, a partly retained garage for storage, gas central heating and double glazing. The property sits on a modest plot and extends to about 1,063 sq ft, making it a manageable family home with scope to modernise parts to personal taste.
Notable considerations: the house dates from the 1930s–1940s with solid brick walls (no built-in cavity insulation assumed) and older double glazing, so upgrading thermal performance could be beneficial. Council tax is above average for the area, and recorded local crime levels are high, which prospective buyers should factor into their decision.
3 bedroom semi-detached house for sale in Highview Gardens, Upminster, RM14 — £650,000 • 3 bed • 1 bath • 1336 ft²
4 bedroom semi-detached house for sale in Eversleigh Gardens, Upminster, RM14 — £775,000 • 4 bed • 2 bath • 1494 ft²
4 bedroom semi-detached house for sale in Cranston Park Avenue, Upminster, RM14 — £900,000 • 4 bed • 2 bath • 1784 ft²
4 bedroom semi-detached house for sale in Newbury Gardens, Upminster, Essex, RM14 — £650,000 • 4 bed • 1 bath • 1265 ft²
4 bedroom semi-detached house for sale in Dart Close, Upminster, RM14 — £750,000 • 4 bed • 1 bath • 1554 ft²
4 bedroom semi-detached house for sale in Ingrebourne Gardens, Upminster, Essex, RM14 — £675,000 • 4 bed • 2 bath • 1188 ft²










































































