Private, high-spec country home with pool and extensive outbuildings.
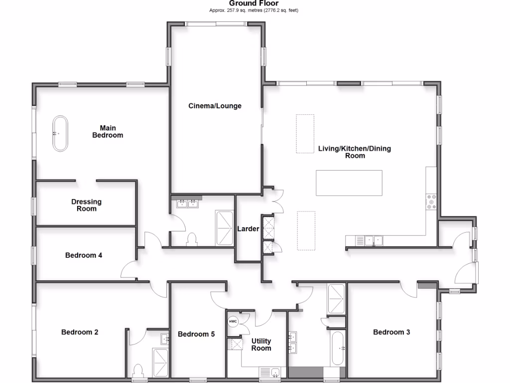
Five double bedrooms with principal suite and mezzanine ensuite
A striking converted chapel set on a very large 0.601-acre plot in the Kent Downs AONB, this fully renovated detached bungalow blends historic character with contemporary living. The open-plan living area, German kitchen and dedicated cinema room create generous, flexible family spaces that open directly onto a porcelain terrace and heated swimming pool — ideal for indoor-outdoor entertaining.
Practical, high-spec systems include underfloor heating throughout, solar panels, an air source heat pump, EV wiring potential and smart controls for lighting, heating and security. Outside, automatic gated access leads to a double garage and multiple outbuildings: a gym/office, insulated bar/games cabin with log burner, summerhouse and useful stores — excellent for hobbies, home-working or guest accommodation.
Notable considerations: the main heating runs on LPG and the original cavity walls are assumed uninsulated, which may affect running costs despite modern systems. Broadband speeds are average in this rural location and council tax is above average. The property was extensively remodelled and buyers should verify planning and building regulation consents where relevant.
Overall this is a rare rural family home offering privacy, versatile ancillary space and high-spec entertaining facilities. It will suit buyers seeking an executive country residence within easy reach of Folkestone, local schools and transport links, who are comfortable with some rural running costs and confirming technical compliance post-renovation.
5 bedroom detached house for sale in New Road, Eythorne, Dover, Kent, CT15 — £775,000 • 5 bed • 4 bath • 754 ft²
6 bedroom detached house for sale in Stalisfield Green, Stalisfield, Faversham, Kent, ME13 — £2,250,000 • 6 bed • 5 bath • 5000 ft²
7 bedroom detached house for sale in Bekesbourne Lane, Bekesbourne, Canterbury, Kent, CT4 — £2,000,000 • 7 bed • 6 bath • 1357 ft²
5 bedroom detached house for sale in Westwell, Ashford, Kent, TN25 — £1,100,000 • 5 bed • 3 bath • 3267 ft²
7 bedroom detached house for sale in Denne Manor Lane, Shottenden, Canterbury, CT4 — £1,950,000 • 7 bed • 5 bath • 6999 ft²
4 bedroom detached house for sale in Canterbury Road, TN25 — £585,000 • 4 bed • 1 bath • 1389 ft²






















































































